Woning Mary van der Sluisstraat 518 Amsterdam

Mary van der Sluisstraat 518, 1095ME Amsterdam

Ontvang updates voor RI Oost terrein

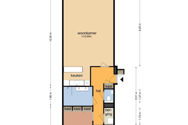
Het adres van deze woning uit 2016 is Mary van der Sluisstraat 518 te Amsterdam. Het pand heeft een oppervlakte van 92m² en heeft 3 kamers kamers waarvan 2 slaapkamers. De geschatte waarde van deze woning is € 535.000.

Bekijk alle woningen in RI Oost terrein

Gegevens van Galerijflat (appartement)

Bouwjaar
2016
Geschatte waarde
€ 535.000
Oppervlakte
92 m2
Inhoud
296 m3
Aantal kamers
3 kamers
Slaapkamers
2
Badkamers
1 badkamer
Soort bouw
Bestaande bouw
Eigendomssituatie
Gemeentelijk eigendom belast met erfpacht (einddatum erfpacht: 31-03-2065)
Ligging
Aan rustige weg en vrij uitzicht

Voorzieningen in de buurt

Boodschappen1,9 km
Grote supermarkt1,7 km
Cafetaria1,0 km
Restaurant0,6 km
Huisarts0,4 km
Ziekenhuis2,8 km
Kinderdagverblijf0,5 km
BSO0,5 km
Alle voorzieningen in RI Oost terrein

Binnenkijken bij Mary van der Sluisstraat 518 te Amsterdam

Meer meldingen in deze omgeving

Nieuw bedrijf
Februari 2026
Mary van der Sluisstraat 158, 1095ME Amsterdam

Nieuw bedrijf
Februari 2026
Faas Wilkesstraat 167B, 1095MD Amsterdam

Binnenkijken bij
Maandag 16-2-2026
Mary van der Sluisstraat 370, 1095ME Amsterdam

112 melding
Zondag 15-2-2026 om 23:29
Kees Broekmanstraat, 1095MS Amsterdam

Binnenkijken bij
Zaterdag 14-2-2026
Mary van der Sluisstraat 464, 1095ME Amsterdam

112 melding
Vrijdag 13-2-2026 om 08:57
Kees Broekmanstraat, 1095MS Amsterdam

Binnenkijken bij
Donderdag 12-2-2026
Eef Kamerbeekstraat 382, 1095MP Amsterdam

Binnenkijken bij
Woensdag 11-2-2026
Eef Kamerbeekstraat 262, 1095MP Amsterdam

Direct een e-mail ontvangen bij nieuwe meldingen in deze regio?

Meld je dan GRATIS aan voor de Oozo Alert service voor RI Oost terrein

Instellen

Meer nieuws in RI Oost terrein

Weten hoe eenvoudig het is om af te vallen? Zonder pillen en smeersels en zonder je in het zweet te werken!
Kijk op eenvoudig-afvallen.nl

© 2012 - 2026 OOZO.nl - info@oozo.nl - Gegevens verwijderen? | Disclaimer | Privacy statement