Woning John Blankensteinstraat 189 Amsterdam

John Blankensteinstraat 189, 1095MB Amsterdam

Ontvang updates voor RI Oost terrein

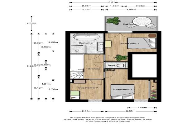
Het adres van deze woning uit 2018 is John Blankensteinstraat 189 te Amsterdam. Het pand heeft een oppervlakte van 140m² en heeft 5 kamers kamers waarvan 3 slaapkamers. De geschatte waarde van deze woning is € 850.000.

Bekijk alle woningen in RI Oost terrein

Gegevens van Dubbel benedenhuis (appartement)

Bouwjaar
2018
Geschatte waarde
€ 850.000
Oppervlakte
140 m2
Inhoud
498 m3
Aantal kamers
5 kamers
Slaapkamers
3
Badkamers
1 badkamer en 1 apart toilet
Soort bouw
Nieuwbouw
Eigendomssituatie
Eigendom belast met erfpacht (einddatum erfpacht: 30-09-2066)
Ligging
In woonwijk
Tuin
Achtertuin
Achtertuin
18 m² (3m diep en 6m breed)

Voorzieningen in de buurt

Boodschappen1,9 km
Grote supermarkt1,7 km
Cafetaria1,0 km
Restaurant0,6 km
Huisarts0,4 km
Ziekenhuis2,8 km
Kinderdagverblijf0,5 km
BSO0,5 km
Alle voorzieningen in RI Oost terrein

Binnenkijken bij John Blankensteinstraat 189 te Amsterdam

Meer meldingen in deze omgeving

112 melding
Maandag 29-12-2025 om 14:52
Faas Wilkesstraat, 1095MD Amsterdam

Nieuw bedrijf
December 2025
Faas Wilkesstraat 119A, 1095MD Amsterdam

112 melding
Dinsdag 23-12-2025 om 16:42
Faas Wilkesstraat, 1095MD Amsterdam

112 melding
Dinsdag 23-12-2025 om 16:08
Faas Wilkesstraat, 1095MD Amsterdam

112 melding
Maandag 22-12-2025 om 13:27
Kees Broekmanstraat, 1095MS Amsterdam

112 melding
Zaterdag 20-12-2025 om 14:49
Foekje Dillemastraat, 1095MK Amsterdam

Binnenkijken bij
Zaterdag 20-12-2025
Eef Kamerbeekstraat 404, 1095MP Amsterdam

112 melding
Vrijdag 19-12-2025 om 16:53
John Blankensteinstraat, Amsterdam

Direct een e-mail ontvangen bij nieuwe meldingen in deze regio?

Meld je dan GRATIS aan voor de Oozo Alert service voor RI Oost terrein

Instellen

Meer nieuws in RI Oost terrein

Weten hoe eenvoudig het is om af te vallen? Zonder pillen en smeersels en zonder je in het zweet te werken!
Kijk op eenvoudig-afvallen.nl

© 2012 - 2025 OOZO.nl - info@oozo.nl - Gegevens verwijderen? | Disclaimer | Privacy statement