Woning Nocturnestraat 10 Apeldoorn

Nocturnestraat 10, 7323LC Apeldoorn

Ontvang updates voor Sprenkelaar

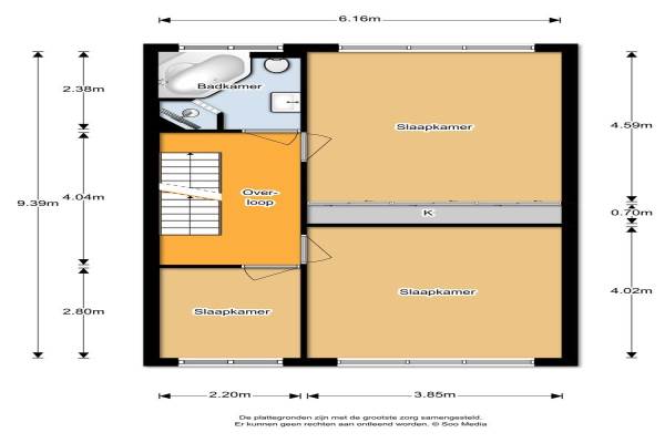
Het adres van deze woning uit 1969 is Nocturnestraat 10 te Apeldoorn. Het pand heeft een oppervlakte van 145m² en een perceeloppervlakte van 277m² en heeft 5 kamers kamers waarvan 4 slaapkamers. De geschatte waarde van deze woning is € 325.000.

Bekijk alle woningen in Sprenkelaar

Gegevens van Eengezinswoning, 2-onder-1-kapwoning

Bouwjaar
1969
Geschatte waarde
€ 325.000
Oppervlakte
145 m2
Inhoud
520 m3
Aantal kamers
5 kamers
Slaapkamers
4
Badkamers
1 badkamer en 1 apart toilet
Soort bouw
Bestaande bouw
Eigendomssituatie
Volle eigendom
Ligging
Aan rustige weg, in woonwijk en vrij uitzicht
Tuin
Achtertuin en voortuin
Achtertuin
95 m² (10,5m diep en 9m breed)

Voorzieningen in de buurt

Boodschappen0,9 km
Grote supermarkt0,9 km
Cafetaria0,6 km
Restaurant1,0 km
Huisarts1,1 km
Ziekenhuis7,8 km
Kinderdagverblijf0,4 km
BSO0,5 km
Alle voorzieningen in Sprenkelaar

Binnenkijken bij Nocturnestraat 10 te Apeldoorn

Meer meldingen in deze omgeving

Binnenkijken bij
Vrijdag 28-11-2025
Socratesstraat 150, 7323PK Apeldoorn

Nieuw bedrijf
November 2025
Rhapsodiestraat 22, 7323LH Apeldoorn

112 melding
Zondag 16-11-2025 om 19:50
Aristotelesstraat, Apeldoorn

Binnenkijken bij
Vrijdag 14-11-2025
Motetstraat 12, 7323LE Apeldoorn

Binnenkijken bij
Vrijdag 14-11-2025
Socratesstraat 152, 7323PK Apeldoorn

Nieuw bedrijf
November 2025
Aristotelesstraat 404, 7323MZ Apeldoorn

Binnenkijken bij
Dinsdag 11-11-2025
Schopenhauerstraat 103, 7323LV Apeldoorn

Binnenkijken bij
Dinsdag 11-11-2025
Schopenhauerstraat 52, 7323MD Apeldoorn

Direct een e-mail ontvangen bij nieuwe meldingen in deze regio?

Meld je dan GRATIS aan voor de Oozo Alert service voor Sprenkelaar

Instellen

Meer nieuws in Sprenkelaar

Weten hoe eenvoudig het is om af te vallen? Zonder pillen en smeersels en zonder je in het zweet te werken!
Kijk op eenvoudig-afvallen.nl

© 2012 - 2025 OOZO.nl - info@oozo.nl - Gegevens verwijderen? | Disclaimer | Privacy statement