Woning Oesterzwam 25 Apeldoorn

Oesterzwam 25, 7324CL Apeldoorn

Ontvang updates voor Zuidbroek - Mozaïek & Rooster

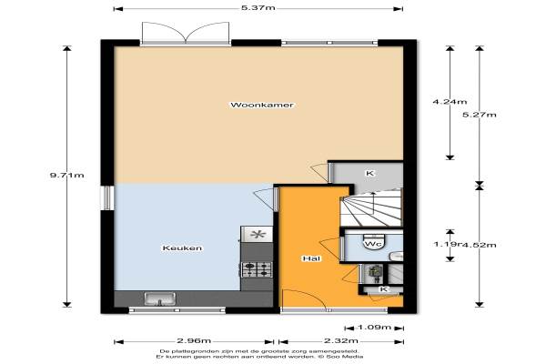
Het adres van deze woning uit 2014 is Oesterzwam 25 te Apeldoorn. Het pand heeft een oppervlakte van 123m² en een perceeloppervlakte van 210m² en heeft 5 kamers kamers waarvan 3 slaapkamers. De geschatte waarde van deze woning is € 289.000.

Bekijk alle woningen in Zuidbroek - Mozaïek & Rooster

Gegevens van Eengezinswoning, hoekwoning

Bouwjaar
2014
Geschatte waarde
€ 289.000
Oppervlakte
123 m2
Inhoud
440 m3
Aantal kamers
5 kamers
Slaapkamers
3
Badkamers
1 badkamer en 1 apart toilet
Soort bouw
Bestaande bouw
Eigendomssituatie
Volle eigendom
Ligging
Aan rustige weg en in woonwijk
Tuin
Achtertuin, voortuin en zonneterras
Achtertuin
72 m² (12m diep en 6m breed)

Voorzieningen in de buurt

Boodschappen0,7 km
Grote supermarkt0,7 km
Cafetaria0,6 km
Restaurant1,7 km
Huisarts1,3 km
Ziekenhuis8,8 km
Kinderdagverblijf0,5 km
BSO0,5 km
Alle voorzieningen in Zuidbroek - Mozaïek & Rooster

Binnenkijken bij Oesterzwam 25 te Apeldoorn

Meer meldingen in deze omgeving

Binnenkijken bij
Woensdag 10-12-2025
Laan van de Charleston 51, 7323RT Apeldoorn

Nieuw bedrijf
December 2025
Valetastraat 42, 7323SG Apeldoorn

Nieuw bedrijf
December 2025
Icarusblauwtje 84, 7323VN Apeldoorn

Nieuw bedrijf
December 2025
Eikepagelaan 116, 7323VB Apeldoorn

Binnenkijken bij
Donderdag 4-12-2025
Vliegenzwam 47, 7324CA Apeldoorn

Nieuw bedrijf
December 2025
Valetastraat 24, 7323SG Apeldoorn

Nieuw bedrijf
December 2025
Distelvlinderlaan 27, 7323RK Apeldoorn

Nieuw bedrijf
December 2025
Distelvlinderlaan 27, 7323RK Apeldoorn

Direct een e-mail ontvangen bij nieuwe meldingen in deze regio?

Meld je dan GRATIS aan voor de Oozo Alert service voor Zuidbroek - Mozaïek & Rooster

Instellen

Meer nieuws in Zuidbroek - Mozaïek & Rooster

Weten hoe eenvoudig het is om af te vallen? Zonder pillen en smeersels en zonder je in het zweet te werken!
Kijk op eenvoudig-afvallen.nl

© 2012 - 2025 OOZO.nl - info@oozo.nl - Gegevens verwijderen? | Disclaimer | Privacy statement