Woning Burgemeester Jhr. Quarles van Uffordlaan 475 Apeldoorn

Burgemeester Jhr. Quarles van Uffordlaan 475, 7321ZW Apeldoorn

Ontvang updates voor Welgelegen

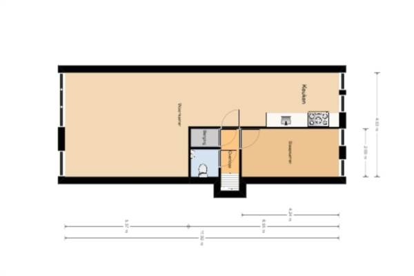
Het adres van deze woning uit 2006 is Burgemeester Jhr. Quarles van Uffordlaan 475 te Apeldoorn. Het pand heeft een oppervlakte van 90m² en heeft 3 kamers kamers waarvan 2 slaapkamers. De geschatte waarde van deze woning is € 175.000.

Bekijk alle woningen in Welgelegen

Gegevens van Maisonnette (appartement)

Bouwjaar
2006
Geschatte waarde
€ 175.000
Oppervlakte
90 m2
Inhoud
280 m3
Aantal kamers
3 kamers
Slaapkamers
2
Badkamers
1 badkamer en 2 aparte toiletten
Soort bouw
Bestaande bouw
Eigendomssituatie
Erfpacht (einddatum erfpacht: 29-08-2055)
Ligging
Aan rustige weg, in woonwijk en vrij uitzicht
Tuin
Achtertuin en voortuin
Achtertuin
49 m² (11,7m diep en 4,2m breed)

Voorzieningen in de buurt

Boodschappen0,7 km
Grote supermarkt0,5 km
Cafetaria0,6 km
Restaurant0,4 km
Huisarts1,0 km
Ziekenhuis5,6 km
Kinderdagverblijf0,4 km
BSO0,7 km
Alle voorzieningen in Welgelegen

Binnenkijken bij Burgemeester Jhr. Quarles van Uffordlaan 475 te Apeldoorn

Meer meldingen in deze omgeving

Binnenkijken bij
Vrijdag 21-11-2025
Molenstraat 126, 7321BH Apeldoorn

Binnenkijken bij
Vrijdag 21-11-2025
Burgemeester Jhr. Quarles van Uffordlaan 371, 7321ZT Apeldoorn

Nieuw bedrijf
November 2025
Vestalaan 28, 7321DG Apeldoorn

Binnenkijken bij
Woensdag 19-11-2025
Pomonalaan 17, 7321DH Apeldoorn

Binnenkijken bij
Vrijdag 14-11-2025
Welgelegenweg 21, 7321AV Apeldoorn

Binnenkijken bij
Vrijdag 14-11-2025
Burgemeester Jhr. Quarles van Uffordlaan 385, 7321ZT Apeldoorn

Nieuw bedrijf
November 2025
Deventerstraat 184, 7321CG Apeldoorn

Binnenkijken bij
Dinsdag 11-11-2025
Faunastraat 20, 7321BC Apeldoorn

Direct een e-mail ontvangen bij nieuwe meldingen in deze regio?

Meld je dan GRATIS aan voor de Oozo Alert service voor Welgelegen

Instellen

Meer nieuws in Welgelegen

Weten hoe eenvoudig het is om af te vallen? Zonder pillen en smeersels en zonder je in het zweet te werken!
Kijk op eenvoudig-afvallen.nl

© 2012 - 2025 OOZO.nl - info@oozo.nl - Gegevens verwijderen? | Disclaimer | Privacy statement