Woning Jan van Nuijshof 31 Apeldoorn

Jan van Nuijshof 31, 7321AK Apeldoorn

Ontvang updates voor Welgelegen

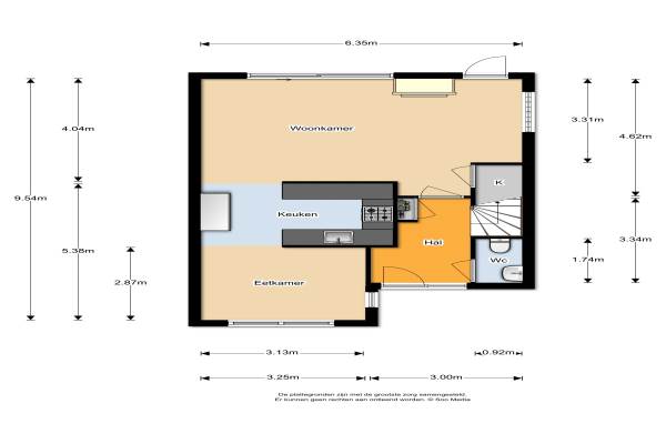
Het adres van deze woning uit 2005 is Jan van Nuijshof 31 te Apeldoorn. Het pand heeft een oppervlakte van 141m² en een perceeloppervlakte van 150m² en heeft 4 kamers kamers waarvan 3 slaapkamers. De geschatte waarde van deze woning is € 339.500.

Bekijk alle woningen in Welgelegen

Gegevens van Eengezinswoning, hoekwoning

Bouwjaar
2005
Geschatte waarde
€ 339.500
Oppervlakte
141 m2
Inhoud
480 m3
Aantal kamers
4 kamers
Slaapkamers
3
Badkamers
1 badkamer en 1 apart toilet
Soort bouw
Bestaande bouw
Eigendomssituatie
Volle eigendom
Ligging
Aan rustige weg
Tuin
Achtertuin en voortuin
Achtertuin
46 m² (7m diep en 6,6m breed)

Voorzieningen in de buurt

Boodschappen0,7 km
Grote supermarkt0,5 km
Cafetaria0,6 km
Restaurant0,4 km
Huisarts1,0 km
Ziekenhuis5,6 km
Kinderdagverblijf0,4 km
BSO0,7 km
Alle voorzieningen in Welgelegen

Binnenkijken bij Jan van Nuijshof 31 te Apeldoorn

Meer meldingen in deze omgeving

Binnenkijken bij
Vrijdag 21-11-2025
Molenstraat 126, 7321BH Apeldoorn

Binnenkijken bij
Vrijdag 21-11-2025
Burgemeester Jhr. Quarles van Uffordlaan 371, 7321ZT Apeldoorn

Nieuw bedrijf
November 2025
Vestalaan 28, 7321DG Apeldoorn

Binnenkijken bij
Woensdag 19-11-2025
Pomonalaan 17, 7321DH Apeldoorn

Binnenkijken bij
Vrijdag 14-11-2025
Welgelegenweg 21, 7321AV Apeldoorn

Binnenkijken bij
Vrijdag 14-11-2025
Burgemeester Jhr. Quarles van Uffordlaan 385, 7321ZT Apeldoorn

Nieuw bedrijf
November 2025
Deventerstraat 184, 7321CG Apeldoorn

Binnenkijken bij
Dinsdag 11-11-2025
Faunastraat 20, 7321BC Apeldoorn

Direct een e-mail ontvangen bij nieuwe meldingen in deze regio?

Meld je dan GRATIS aan voor de Oozo Alert service voor Welgelegen

Instellen

Meer nieuws in Welgelegen

Weten hoe eenvoudig het is om af te vallen? Zonder pillen en smeersels en zonder je in het zweet te werken!
Kijk op eenvoudig-afvallen.nl

© 2012 - 2025 OOZO.nl - info@oozo.nl - Gegevens verwijderen? | Disclaimer | Privacy statement