Woning Ordermolenweg 18 Apeldoorn

Ordermolenweg 18, 7312SG Apeldoorn

Ontvang updates voor Orden

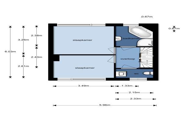
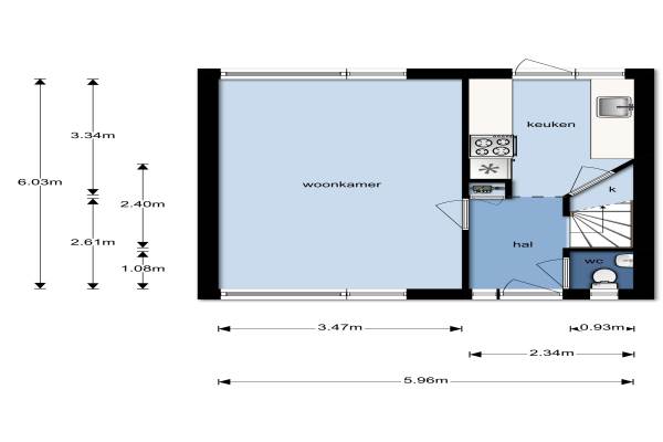
Het adres van deze woning uit 1963 is Ordermolenweg 18 te Apeldoorn. Het pand heeft een oppervlakte van 84m² en een perceeloppervlakte van 165m² en heeft 4 kamers kamers waarvan 3 slaapkamers. De geschatte waarde van deze woning is € 200.000.

Bekijk alle woningen in Orden

Gegevens van Eengezinswoning, tussenwoning

Bouwjaar
1963
Geschatte waarde
€ 200.000
Oppervlakte
84 m2
Inhoud
307 m3
Aantal kamers
4 kamers
Slaapkamers
3
Badkamers
1 badkamer en 1 apart toilet
Soort bouw
Bestaande bouw
Ligging
Aan rustige weg en in woonwijk
Tuin
Achtertuin en voortuin
Achtertuin
60 m² (10m diep en 6m breed)

Voorzieningen in de buurt

Boodschappen0,5 km
Grote supermarkt0,6 km
Cafetaria0,6 km
Restaurant0,6 km
Huisarts0,6 km
Ziekenhuis3,4 km
Kinderdagverblijf0,4 km
BSO0,5 km
Alle voorzieningen in Orden

Binnenkijken bij Ordermolenweg 18 te Apeldoorn

Meer meldingen in deze omgeving

Binnenkijken bij
Zaterdag 20-12-2025
Zanderijweg 96, 7312LL Apeldoorn

112 melding
Woensdag 17-12-2025 om 01:31
Germanenlaan, Apeldoorn

112 melding
Dinsdag 16-12-2025 om 11:17
Germanenlaan, Apeldoorn

Nieuw bedrijf
December 2025
Gerard Terborchstraat 18, 7312PP Apeldoorn

Nieuw bedrijf
December 2025
George Hendrik Breitnerstraat 1, 7312ML Apeldoorn

112 melding
Maandag 15-12-2025 om 21:35
Germanenlaan, Apeldoorn

112 melding
Maandag 15-12-2025 om 03:20
Germanenlaan, Apeldoorn

Binnenkijken bij
Zondag 14-12-2025
Van Goghstraat 34, 7312SZ Apeldoorn

Direct een e-mail ontvangen bij nieuwe meldingen in deze regio?

Meld je dan GRATIS aan voor de Oozo Alert service voor Orden

Instellen

Meer nieuws in Orden

Weten hoe eenvoudig het is om af te vallen? Zonder pillen en smeersels en zonder je in het zweet te werken!
Kijk op eenvoudig-afvallen.nl

© 2012 - 2025 OOZO.nl - info@oozo.nl - Gegevens verwijderen? | Disclaimer | Privacy statement