Woning Waltersingel 6 Apeldoorn

Waltersingel 6, 7314 N Apeldoorn

Ontvang updates voor Sprengenbos

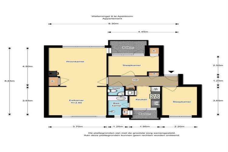
Het adres van deze woning uit 1956 is Waltersingel 6 te Apeldoorn. Het pand heeft een oppervlakte van 67m² en heeft 3 kamers kamers waarvan 2 slaapkamers. De geschatte waarde van deze woning is € 169.000.

Bekijk alle woningen in Sprengenbos

Gegevens van

Bouwjaar
1956
Geschatte waarde
€ 169.000
Oppervlakte
67 m2
Inhoud
229 m3
Aantal kamers
3 kamers
Slaapkamers
2
Badkamers
1 badkamer en 1 apart toilet
Soort bouw
Bestaande bouw
Eigendomssituatie
Volle eigendom
Ligging
Aan rustige weg, in woonwijk en vrij uitzicht

Voorzieningen in de buurt

Boodschappen0,5 km
Grote supermarkt0,6 km
Cafetaria0,6 km
Restaurant0,7 km
Huisarts0,6 km
Ziekenhuis5,1 km
Kinderdagverblijf0,4 km
BSO0,6 km
Alle voorzieningen in Sprengenbos

Binnenkijken bij Waltersingel 6 te Apeldoorn

Meer meldingen in deze omgeving

Nieuw bedrijf
Januari 2026
Koning Lodewijklaan 12, 7314GE Apeldoorn

Nieuw bedrijf
Januari 2026
De Hegge 29, 7314JR Apeldoorn

112 melding
Zaterdag 17-1-2026 om 15:46
John F. Kennedylaan, 7314PS Apeldoorn

Binnenkijken bij
Zaterdag 10-1-2026
Staringlaan 48, 7314LS Apeldoorn

112 melding
Zaterdag 3-1-2026 om 23:05
Boszichtlaan, Apeldoorn

Nieuw bedrijf
Januari 2026
Saturnusstraat 46, 7314KN Apeldoorn

Nieuw bedrijf
Januari 2026
Marsweg 14A, 7314KD Apeldoorn

Nieuw bedrijf
Januari 2026
Schuttersweg 94, 7314LJ Apeldoorn

Direct een e-mail ontvangen bij nieuwe meldingen in deze regio?

Meld je dan GRATIS aan voor de Oozo Alert service voor Sprengenbos

Instellen

Meer nieuws in Sprengenbos

Weten hoe eenvoudig het is om af te vallen? Zonder pillen en smeersels en zonder je in het zweet te werken!
Kijk op eenvoudig-afvallen.nl

© 2012 - 2026 OOZO.nl - info@oozo.nl - Gegevens verwijderen? | Disclaimer | Privacy statement