Woning Essenburg 16 Ugchelen

Essenburg 16, 7339DW Ugchelen

Ontvang updates voor Ugchelen

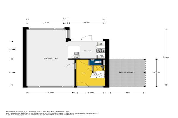
Het adres van deze woning uit 1967 is Essenburg 16 te Ugchelen. Het pand heeft een oppervlakte van 122m² en een perceeloppervlakte van 242m² en heeft 5 kamers kamers waarvan 4 slaapkamers. De geschatte waarde van deze woning is € 279.500.

Bekijk alle woningen in Ugchelen

Gegevens van Eengezinswoning, hoekwoning

Bouwjaar
1967
Geschatte waarde
€ 279.500
Oppervlakte
122 m2
Inhoud
426 m3
Aantal kamers
5 kamers
Slaapkamers
4
Badkamers
1 badkamer en 2 aparte toiletten
Soort bouw
Bestaande bouw
Eigendomssituatie
Volle eigendom
Ligging
Aan rustige weg en in woonwijk
Tuin
Achtertuin, voortuin, zijtuin en zonneterras
Achtertuin
99 m² (11m diep en 9m breed)

Voorzieningen in de buurt

Boodschappen0,7 km
Grote supermarkt0,9 km
Cafetaria0,4 km
Restaurant0,9 km
Huisarts0,7 km
Ziekenhuis1,7 km
Kinderdagverblijf0,6 km
BSO0,6 km
Alle voorzieningen in Ugchelen

Binnenkijken bij Essenburg 16 te Ugchelen

Meer meldingen in deze omgeving

Faillissement
Woensdag 4-3-2026
Molecatenlaan 28A, 7339LM Ugchelen

Faillissement
Woensdag 4-3-2026
Molecatenlaan 28A, 7339LM Ugchelen

Binnenkijken bij
Zaterdag 28-2-2026
Rhienderstein 4, 7339BE Ugchelen

Binnenkijken bij
Vrijdag 27-2-2026
Loevestein 4, 7339AX Ugchelen

Nieuw bedrijf
Februari 2026
De Cloese 111, 7339CM Ugchelen

Binnenkijken bij
Woensdag 25-2-2026
Rhienderstein 12, 7339BE Ugchelen

Nieuw bedrijf
Februari 2026
Karhulstraat 31, 7339AD Ugchelen

Binnenlands nieuws
Zaterdag 21-2-2026
Ugchelen

Direct een e-mail ontvangen bij nieuwe meldingen in deze regio?

Meld je dan GRATIS aan voor de Oozo Alert service voor Ugchelen

Instellen

Meer nieuws in Ugchelen

Weten hoe eenvoudig het is om af te vallen? Zonder pillen en smeersels en zonder je in het zweet te werken!
Kijk op eenvoudig-afvallen.nl

© 2012 - 2026 OOZO.nl - info@oozo.nl - Gegevens verwijderen? | Disclaimer | Privacy statement