Woning Stationsweg 30 Appingedam

Stationsweg 30, 9901CS Appingedam

Ontvang updates voor Appingedam-Centrum

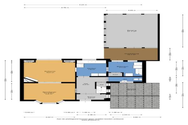
Het adres van deze woning uit 1925 is Stationsweg 30 te Appingedam. Het pand heeft een oppervlakte van 136m² en een perceeloppervlakte van 256m² en heeft 5 kamers kamers waarvan 4 slaapkamers. De geschatte waarde van deze woning is € 269.000.

Bekijk alle woningen in Appingedam-Centrum

Gegevens van Eengezinswoning, 2-onder-1-kapwoning

Bouwjaar
1925
Geschatte waarde
€ 269.000
Oppervlakte
136 m2
Inhoud
557 m3
Aantal kamers
5 kamers
Slaapkamers
4
Badkamers
1 badkamer en 1 apart toilet
Soort bouw
Bestaande bouw
Eigendomssituatie
Volle eigendom
Ligging
Aan drukke weg
Tuin
Achtertuin en voortuin
Achtertuin
110 m² (10,50 meter diep en 10,50 meter breed)

Voorzieningen in de buurt

Boodschappen0,3 km
Grote supermarkt0,6 km
Cafetaria0,3 km
Restaurant0,2 km
Huisarts1,1 km
Ziekenhuis5,3 km
Kinderdagverblijf1,2 km
BSO1,2 km
Alle voorzieningen in Appingedam-Centrum

Binnenkijken bij Stationsweg 30 te Appingedam

Meer meldingen in deze omgeving

Nieuw bedrijf
Oktober 2025
Stationsweg 34, 9901CS Appingedam

112 melding
Donderdag 2-10-2025 om 20:34
Uiterdijk, Appingedam

Binnenkijken bij
Donderdag 2-10-2025
Cornelis Albertsstraat 14, 9901EJ Appingedam

Binnenkijken bij
Zaterdag 27-9-2025
Heiliggravenweg 16, 9901CH Appingedam

112 melding
Woensdag 17-9-2025 om 10:50
Borglaan, Appingedam

Nieuw bedrijf
September 2025
Sint Annastraat 1, 9901AW Appingedam

Nieuw bedrijf
September 2025
Solwerderstraat 35, 9901BB Appingedam

Nieuw bedrijf
September 2025
Harmoniestraat 20, 9901CW Appingedam

Direct een e-mail ontvangen bij nieuwe meldingen in deze regio?

Meld je dan GRATIS aan voor de Oozo Alert service voor Appingedam-Centrum

Instellen

Meer nieuws in Appingedam-Centrum

Weten hoe eenvoudig het is om af te vallen? Zonder pillen en smeersels en zonder je in het zweet te werken!
Kijk op eenvoudig-afvallen.nl

© 2012 - 2025 OOZO.nl - info@oozo.nl - Gegevens verwijderen? | Disclaimer | Privacy statement