Woning Johan de Wittlaan 259 Arnhem

Johan de Wittlaan 259, 6828XL Arnhem

Ontvang updates voor Statenkwartier

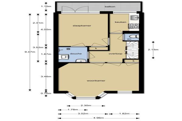
Het adres van deze woning uit 1935 is Johan de Wittlaan 259 te Arnhem. Het pand heeft een oppervlakte van 67m² en heeft 3 kamers kamers waarvan 2 slaapkamers. De geschatte waarde van deze woning is € 125.000.

Bekijk alle woningen in Statenkwartier

Gegevens van Maisonnette (appartement)

Bouwjaar
1935
Geschatte waarde
€ 125.000
Oppervlakte
67 m2
Inhoud
247 m3
Aantal kamers
3 kamers
Slaapkamers
2
Badkamers
1 badkamer en 1 apart toilet
Soort bouw
Bestaande bouw
Eigendomssituatie
Volle eigendom
Ligging
In centrum en in woonwijk

Voorzieningen in de buurt

Boodschappen0,5 km
Grote supermarkt0,3 km
Cafetaria0,2 km
Restaurant0,5 km
Huisarts0,6 km
Ziekenhuis3,6 km
Kinderdagverblijf0,3 km
BSO0,7 km
Alle voorzieningen in Statenkwartier

Binnenkijken bij Johan de Wittlaan 259 te Arnhem

Meer meldingen in deze omgeving

112 melding
Donderdag 18-12-2025 om 15:36
Johan de Wittlaan, 6828XJ Arnhem

112 melding
Donderdag 18-12-2025 om 11:33
De Bosch Kemperstraat, 6828SN Arnhem

112 melding
Donderdag 18-12-2025 om 11:33
De Bosch Kemperstraat, 6828SN Arnhem

112 melding
Donderdag 18-12-2025 om 11:01
Thorbeckestraat, 6828TX Arnhem

112 melding
Donderdag 18-12-2025 om 10:51
Van Slingelandtstraat, 6828VD Arnhem

112 melding
Donderdag 18-12-2025 om 10:51
Van Slingelandtstraat, 6828VD Arnhem

112 melding
Donderdag 18-12-2025 om 10:23
Van Slingelandtstraat, Arnhem

112 melding
Woensdag 17-12-2025 om 21:02
Johan de Wittlaan, 6828XJ Arnhem

Direct een e-mail ontvangen bij nieuwe meldingen in deze regio?

Meld je dan GRATIS aan voor de Oozo Alert service voor Statenkwartier

Instellen

Meer nieuws in Statenkwartier

Weten hoe eenvoudig het is om af te vallen? Zonder pillen en smeersels en zonder je in het zweet te werken!
Kijk op eenvoudig-afvallen.nl

© 2012 - 2025 OOZO.nl - info@oozo.nl - Gegevens verwijderen? | Disclaimer | Privacy statement