Woning Bosboomstraat 21 Arnhem

Bosboomstraat 21, 6813KB Arnhem

Ontvang updates voor Sterrenberg

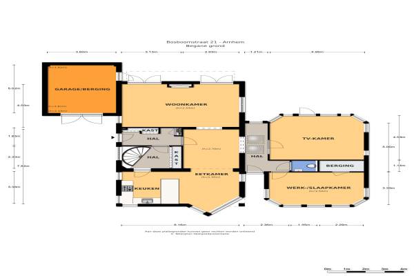
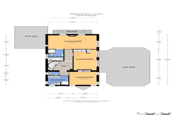
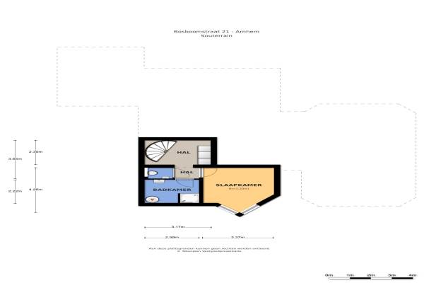
Het adres van deze woning uit 1953 is Bosboomstraat 21 te Arnhem. Het pand heeft een oppervlakte van 281m² en een perceeloppervlakte van 720m² en heeft 9 kamers kamers waarvan 5 slaapkamers. De geschatte waarde van deze woning is € 895.000.

Bekijk alle woningen in Sterrenberg

Gegevens van Eengezinswoning, vrijstaande woning

Bouwjaar
1953
Geschatte waarde
€ 895.000
Oppervlakte
281 m2
Inhoud
1039 m3
Aantal kamers
9 kamers
Slaapkamers
5
Badkamers
4 badkamers en 3 aparte toiletten
Soort bouw
Bestaande bouw
Eigendomssituatie
Volle eigendom
Ligging
Aan rustige weg, in woonwijk en in bosrijke omgeving
Tuin
Achtertuin, voortuin en zijtuin
Achtertuin
400 m² (20m diep en 20m breed)

Voorzieningen in de buurt

Boodschappen0,4 km
Grote supermarkt0,9 km
Cafetaria0,7 km
Restaurant0,5 km
Huisarts1,0 km
Ziekenhuis2,6 km
Kinderdagverblijf0,3 km
BSO0,3 km
Alle voorzieningen in Sterrenberg

Binnenkijken bij Bosboomstraat 21 te Arnhem

Meer meldingen in deze omgeving

112 melding
Woensdag 14-1-2026 om 08:02
Jacob Marislaan, 6813JR Arnhem

112 melding
Dinsdag 13-1-2026 om 10:07
Bauerstraat, 6813KZ Arnhem

112 melding
Dinsdag 13-1-2026 om 10:07
Bauerstraat, 6813KZ Arnhem

112 melding
Donderdag 8-1-2026 om 10:07
Jacob Marislaan, 6813JP Arnhem

112 melding
Woensdag 7-1-2026 om 10:21
Bauerstraat, Arnhem

112 melding
Woensdag 7-1-2026 om 08:26
Colenbranderstraat, 6813KV Arnhem

112 melding
Maandag 5-1-2026 om 11:04
Colenbranderstraat, 6813KV Arnhem

112 melding
Zondag 4-1-2026 om 17:56
Bauerstraat, Arnhem

Direct een e-mail ontvangen bij nieuwe meldingen in deze regio?

Meld je dan GRATIS aan voor de Oozo Alert service voor Sterrenberg

Instellen

Meer nieuws in Sterrenberg

Weten hoe eenvoudig het is om af te vallen? Zonder pillen en smeersels en zonder je in het zweet te werken!
Kijk op eenvoudig-afvallen.nl

© 2012 - 2026 OOZO.nl - info@oozo.nl - Gegevens verwijderen? | Disclaimer | Privacy statement