Woning Callunastraat 49 Arnhem

Callunastraat 49, 6813EV Arnhem

Ontvang updates voor Heijenoord

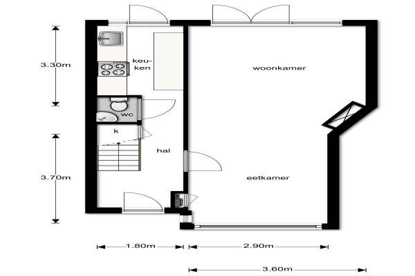
Het adres van deze woning uit 1938 is Callunastraat 49 te Arnhem. Het pand heeft een oppervlakte van 85m² en een perceeloppervlakte van 145m² en heeft 5 kamers kamers waarvan 3 slaapkamers. De geschatte waarde van deze woning is € 245.000.

Bekijk alle woningen in Heijenoord

Gegevens van Eengezinswoning, tussenwoning

Bouwjaar
1938
Geschatte waarde
€ 245.000
Oppervlakte
85 m2
Inhoud
250 m3
Aantal kamers
5 kamers
Slaapkamers
3
Badkamers
1 apart toilet
Soort bouw
Bestaande bouw
Eigendomssituatie
Volle eigendom
Ligging
Aan rustige weg en in woonwijk
Tuin
Achtertuin en voortuin
Achtertuin
55 m² (11m diep en 5m breed)

Voorzieningen in de buurt

Boodschappen0,5 km
Grote supermarkt0,5 km
Cafetaria0,5 km
Restaurant0,6 km
Huisarts0,8 km
Ziekenhuis3,2 km
Kinderdagverblijf0,3 km
BSO0,3 km
Alle voorzieningen in Heijenoord

Binnenkijken bij Callunastraat 49 te Arnhem

Meer meldingen in deze omgeving

Binnenkijken bij
Donderdag 9-10-2025
Noordelijke Parallelweg 74, 6813DE Arnhem

112 melding
Donderdag 9-10-2025 om 09:03
Hertshoornstraat, 6813EJ Arnhem

Binnenkijken bij
Donderdag 9-10-2025
Tormentilstraat 8, 6813EP Arnhem

Binnenkijken bij
Donderdag 9-10-2025
Van Wageningenstraat 67, 6813DN Arnhem

112 melding
Woensdag 8-10-2025 om 14:26
Gentiaanstraat, 6813ES Arnhem

112 melding
Woensdag 8-10-2025 om 08:09
Callunastraat, Arnhem

112 melding
Donderdag 2-10-2025 om 15:21
Noordelijke Parallelweg, 6813DG Arnhem

Binnenkijken bij
Woensdag 1-10-2025
Bremstraat 80, 6813EN Arnhem

Direct een e-mail ontvangen bij nieuwe meldingen in deze regio?

Meld je dan GRATIS aan voor de Oozo Alert service voor Heijenoord

Instellen

Meer nieuws in Heijenoord

Weten hoe eenvoudig het is om af te vallen? Zonder pillen en smeersels en zonder je in het zweet te werken!
Kijk op eenvoudig-afvallen.nl

© 2012 - 2025 OOZO.nl - info@oozo.nl - Gegevens verwijderen? | Disclaimer | Privacy statement