Woning Forelstraat 88 Arnhem

Forelstraat 88, 6833BM Arnhem

Ontvang updates voor Groene Weide

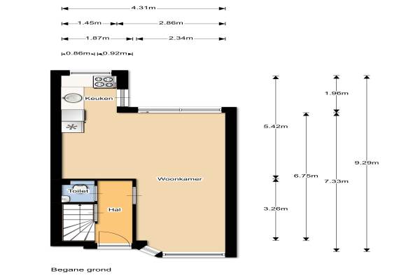
Het adres van deze woning uit 1936 is Forelstraat 88 te Arnhem. Het pand heeft een oppervlakte van 62m² en een perceeloppervlakte van 124m² en heeft 3 kamers kamers waarvan 2 slaapkamers. De geschatte waarde van deze woning is € 118.000.

Bekijk alle woningen in Groene Weide

Gegevens van Eengezinswoning, tussenwoning

Bouwjaar
1936
Geschatte waarde
€ 118.000
Oppervlakte
62 m2
Inhoud
300 m3
Aantal kamers
3 kamers
Slaapkamers
2
Badkamers
1 badkamer en 1 apart toilet
Soort bouw
Bestaande bouw
Eigendomssituatie
Volle eigendom
Ligging
Aan rustige weg, in woonwijk en beschutte ligging
Tuin
Achtertuin en voortuin
Achtertuin
47 m² (10,5m diep en 4,5m breed)

Voorzieningen in de buurt

Boodschappen0,4 km
Grote supermarkt0,5 km
Cafetaria0,2 km
Restaurant0,3 km
Huisarts0,5 km
Ziekenhuis3,1 km
Kinderdagverblijf0,4 km
BSO0,4 km
Alle voorzieningen in Groene Weide

Binnenkijken bij Forelstraat 88 te Arnhem

Meer meldingen in deze omgeving

112 melding
Woensdag 10-12-2025 om 09:47
Veerpolderstraat, 6833BR Arnhem

112 melding
Woensdag 10-12-2025 om 09:47
Veerpolderstraat, 6833BR Arnhem

112 melding
Dinsdag 9-12-2025 om 11:02
Snoekstraat, 6833EE Arnhem

112 melding
Maandag 8-12-2025 om 18:10
Huissensestraat, 6833HM Arnhem

112 melding
Maandag 8-12-2025 om 14:45
Veerpolderstraat, 6833BN Arnhem

112 melding
Maandag 8-12-2025 om 13:46
Suikerland, 6833BA Arnhem

Nieuw bedrijf
December 2025
Graslaan 97C, 6833CE Arnhem

112 melding
Zaterdag 6-12-2025 om 19:04
Veerpolderstraat, 6833BN Arnhem

Direct een e-mail ontvangen bij nieuwe meldingen in deze regio?

Meld je dan GRATIS aan voor de Oozo Alert service voor Groene Weide

Instellen

Meer nieuws in Groene Weide

Weten hoe eenvoudig het is om af te vallen? Zonder pillen en smeersels en zonder je in het zweet te werken!
Kijk op eenvoudig-afvallen.nl

© 2012 - 2025 OOZO.nl - info@oozo.nl - Gegevens verwijderen? | Disclaimer | Privacy statement