Woning Ranonkelstraat 15-2 Arnhem

Ranonkelstraat 15--2, 6833AM Arnhem

Ontvang updates voor Groene Weide

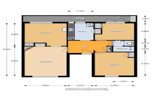
Het adres van deze woning is Ranonkelstraat 15-2 te Arnhem. Het pand heeft een oppervlakte van 78m² en heeft 5 kamers kamers waarvan 3 slaapkamers. De geschatte waarde van deze woning is € 119.500.

Bekijk alle woningen in Groene Weide

Gegevens van Portiekflat (appartement)

Geschatte waarde
€ 119.500
Oppervlakte
78 m2
Inhoud
270 m3
Aantal kamers
5 kamers
Slaapkamers
3
Badkamers
1 badkamer en 1 apart toilet
Soort bouw
Bestaande bouw
Eigendomssituatie
Volle eigendom
Ligging
Aan rustige weg en in woonwijk

Voorzieningen in de buurt

Boodschappen0,4 km
Grote supermarkt0,5 km
Cafetaria0,2 km
Restaurant0,3 km
Huisarts0,5 km
Ziekenhuis3,1 km
Kinderdagverblijf0,4 km
BSO0,4 km
Alle voorzieningen in Groene Weide

Binnenkijken bij Ranonkelstraat 15-2 te Arnhem

Meer meldingen in deze omgeving

112 melding
Maandag 17-11-2025 om 09:46
Veronicastraat, 6833AW Arnhem

112 melding
Maandag 17-11-2025 om 09:42
Forelstraat, 6833BG Arnhem

Nieuw bedrijf
November 2025
Grondelstraat 102, 6833DW Arnhem

112 melding
Zondag 16-11-2025 om 14:35
Veerpolderstraat, 6833BS Arnhem

112 melding
Zondag 16-11-2025 om 14:35
Veerpolderstraat, 6833BS Arnhem

Nieuw bedrijf
November 2025
Orchislaan 141, 6833AD Arnhem

112 melding
Donderdag 13-11-2025 om 15:58
Melkweg, 6833DZ Arnhem

112 melding
Donderdag 13-11-2025 om 15:53
Forelstraat, 6833BL Arnhem

Direct een e-mail ontvangen bij nieuwe meldingen in deze regio?

Meld je dan GRATIS aan voor de Oozo Alert service voor Groene Weide

Instellen

Meer nieuws in Groene Weide

Weten hoe eenvoudig het is om af te vallen? Zonder pillen en smeersels en zonder je in het zweet te werken!
Kijk op eenvoudig-afvallen.nl

© 2012 - 2025 OOZO.nl - info@oozo.nl - Gegevens verwijderen? | Disclaimer | Privacy statement