Woning Rupelmondestraat 17 Arnhem

Rupelmondestraat 17, 6825AT Arnhem

Ontvang updates voor Elsweide

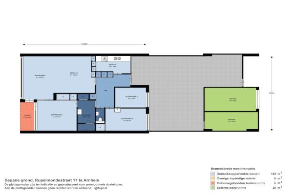
Het adres van deze woning uit 1968 is Rupelmondestraat 17 te Arnhem. Het pand heeft een oppervlakte van 105m² en een perceeloppervlakte van 277m² en heeft 4 kamers kamers waarvan 3 slaapkamers. De geschatte waarde van deze woning is € 309.500.

Bekijk alle woningen in Elsweide

Gegevens van Eengezinswoning, geschakelde woning (patiowoning)

Bouwjaar
1968
Geschatte waarde
€ 309.500
Oppervlakte
105 m2
Inhoud
315 m3
Aantal kamers
4 kamers
Slaapkamers
3
Badkamers
1 badkamer en 1 apart toilet
Soort bouw
Bestaande bouw
Eigendomssituatie
Volle eigendom
Ligging
Aan water, aan park, in woonwijk en vrij uitzicht
Tuin
Achtertuin en voortuin
Achtertuin
56 m² (7m diep en 8m breed)

Voorzieningen in de buurt

Boodschappen0,8 km
Grote supermarkt1,1 km
Cafetaria0,6 km
Restaurant1,2 km
Huisarts1,4 km
Ziekenhuis2,4 km
Kinderdagverblijf0,9 km
BSO0,8 km
Alle voorzieningen in Elsweide

Binnenkijken bij Rupelmondestraat 17 te Arnhem

Meer meldingen in deze omgeving

112 melding
Donderdag 1-1-2026 om 01:47
Beverweerdlaan, 6825AE Arnhem

112 melding
Dinsdag 30-12-2025 om 16:06
Drakensteinlaan, 6825AR Arnhem

112 melding
Dinsdag 30-12-2025 om 14:18
Drakensteinlaan, 6825AR Arnhem

112 melding
Dinsdag 30-12-2025 om 08:50
Lange Water, 6825BA Arnhem

112 melding
Dinsdag 30-12-2025 om 08:49
Lange Water, 6825BA Arnhem

112 melding
Maandag 29-12-2025 om 15:07
Lange Water, 6825BA Arnhem

112 melding
Maandag 29-12-2025 om 15:07
Lange Water, 6825BA Arnhem

112 melding
Dinsdag 23-12-2025 om 00:19
Lange Water, 6825BA Arnhem

Direct een e-mail ontvangen bij nieuwe meldingen in deze regio?

Meld je dan GRATIS aan voor de Oozo Alert service voor Elsweide

Instellen

Meer nieuws in Elsweide

Weten hoe eenvoudig het is om af te vallen? Zonder pillen en smeersels en zonder je in het zweet te werken!
Kijk op eenvoudig-afvallen.nl

© 2012 - 2026 OOZO.nl - info@oozo.nl - Gegevens verwijderen? | Disclaimer | Privacy statement