Woning Goudensteinstraat 44 Arnhem

Goudensteinstraat 44, 6825CS Arnhem

Ontvang updates voor Over het Lange Water

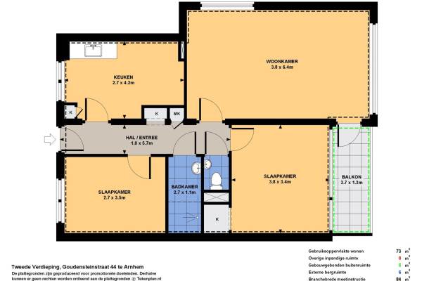
Het adres van deze woning uit 1968 is Goudensteinstraat 44 te Arnhem. Het pand heeft een oppervlakte van 73m² en heeft 3 kamers kamers waarvan 2 slaapkamers. De geschatte waarde van deze woning is € 200.000.

Bekijk alle woningen in Over het Lange Water

Gegevens van Galerijflat

Bouwjaar
1968
Geschatte waarde
€ 200.000
Oppervlakte
73 m2
Inhoud
225 m3
Aantal kamers
3 kamers
Slaapkamers
2
Badkamers
1 badkamer en 1 apart toilet
Soort bouw
Bestaande bouw
Eigendomssituatie
Volle eigendom
Ligging
Aan rustige weg en in woonwijk

Voorzieningen in de buurt

Boodschappen0,5 km
Grote supermarkt1,1 km
Cafetaria0,5 km
Restaurant1,1 km
Huisarts1,5 km
Ziekenhuis2,1 km
Kinderdagverblijf0,4 km
BSO0,4 km
Alle voorzieningen in Over het Lange Water

Binnenkijken bij Goudensteinstraat 44 te Arnhem

Meer meldingen in deze omgeving

112 melding
Zondag 26-10-2025 om 09:00
Matenalaan, 6825DN Arnhem

112 melding
Zaterdag 25-10-2025 om 18:02
Lage Waard, 6825JG Arnhem

112 melding
Zaterdag 25-10-2025 om 16:28
Wijenburglaan, 6825CH Arnhem

112 melding
Zaterdag 25-10-2025 om 16:26
Kellendonkstraat, 6825CM Arnhem

112 melding
Zaterdag 25-10-2025 om 16:25
Kellendonkstraat, 6825CM Arnhem

112 melding
Zaterdag 25-10-2025 om 15:16
Middachtensingel, 6825 Arnhem

112 melding
Vrijdag 24-10-2025 om 14:27
Nijenbeeklaan, 6825KX Arnhem

112 melding
Vrijdag 24-10-2025 om 11:05
Lage Waard, 6825JG Arnhem

Direct een e-mail ontvangen bij nieuwe meldingen in deze regio?

Meld je dan GRATIS aan voor de Oozo Alert service voor Over het Lange Water

Instellen

Meer nieuws in Over het Lange Water

Weten hoe eenvoudig het is om af te vallen? Zonder pillen en smeersels en zonder je in het zweet te werken!
Kijk op eenvoudig-afvallen.nl

© 2012 - 2025 OOZO.nl - info@oozo.nl - Gegevens verwijderen? | Disclaimer | Privacy statement