Woning Wildenborglaan 41 Arnhem

Wildenborglaan 4-1, 6825GB Arnhem

Ontvang updates voor Over het Lange Water

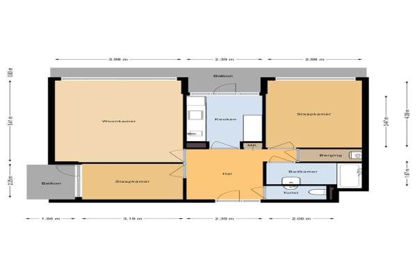
Het adres van deze woning uit 1969 is Wildenborglaan 41 te Arnhem. Het pand heeft een oppervlakte van 73m² en heeft 3 kamers kamers waarvan 2 slaapkamers. De geschatte waarde van deze woning is € 210.000.

Bekijk alle woningen in Over het Lange Water

Gegevens van Portiekflat (appartement)

Bouwjaar
1969
Geschatte waarde
€ 210.000
Oppervlakte
73 m2
Inhoud
233 m3
Aantal kamers
3 kamers
Slaapkamers
2
Badkamers
1 badkamer en 1 apart toilet
Soort bouw
Bestaande bouw
Ligging
Aan park, aan rustige weg en in woonwijk

Voorzieningen in de buurt

Boodschappen0,5 km
Grote supermarkt1,1 km
Cafetaria0,5 km
Restaurant1,1 km
Huisarts1,5 km
Ziekenhuis2,1 km
Kinderdagverblijf0,4 km
BSO0,4 km
Alle voorzieningen in Over het Lange Water

Binnenkijken bij Wildenborglaan 41 te Arnhem

Meer meldingen in deze omgeving

112 melding
Vrijdag 7-11-2025 om 10:41
Nijenbeeklaan, 6825KX Arnhem

112 melding
Vrijdag 7-11-2025 om 10:37
Cannenburglaan, 6825KK Arnhem

112 melding
Vrijdag 7-11-2025 om 10:37
Cannenburglaan, 6825KK Arnhem

112 melding
Donderdag 6-11-2025 om 22:38
Kinderkamp, 6825JA Arnhem

112 melding
Donderdag 6-11-2025 om 16:38
Ulenpaslaan, 6825EE Arnhem

112 melding
Donderdag 6-11-2025 om 15:11
Boksbergenstraat, 6825BB Arnhem

112 melding
Donderdag 6-11-2025 om 15:11
Boksbergenstraat, 6825BB Arnhem

112 melding
Donderdag 6-11-2025 om 14:59
Singravenlaan, 6825BH Arnhem

Direct een e-mail ontvangen bij nieuwe meldingen in deze regio?

Meld je dan GRATIS aan voor de Oozo Alert service voor Over het Lange Water

Instellen

Meer nieuws in Over het Lange Water

Weten hoe eenvoudig het is om af te vallen? Zonder pillen en smeersels en zonder je in het zweet te werken!
Kijk op eenvoudig-afvallen.nl

© 2012 - 2025 OOZO.nl - info@oozo.nl - Gegevens verwijderen? | Disclaimer | Privacy statement