Woning Weldamlaan 55 Arnhem

Weldamlaan 55, 6825BX Arnhem

Ontvang updates voor Over het Lange Water

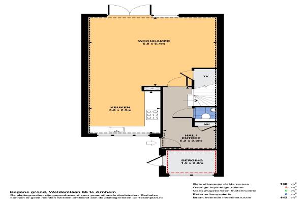
Het adres van deze woning uit 2007 is Weldamlaan 55 te Arnhem. Het pand heeft een oppervlakte van 138m² en een perceeloppervlakte van 146m² en heeft 6 kamers kamers waarvan 5 slaapkamers. De geschatte waarde van deze woning is € 295.000.

Bekijk alle woningen in Over het Lange Water

Gegevens van Eengezinswoning, tussenwoning

Bouwjaar
2007
Geschatte waarde
€ 295.000
Oppervlakte
138 m2
Inhoud
450 m3
Aantal kamers
6 kamers
Slaapkamers
5
Badkamers
1 apart toilet
Soort bouw
Bestaande bouw
Eigendomssituatie
Volle eigendom
Ligging
Aan rustige weg, in woonwijk en vrij uitzicht
Tuin
Achtertuin en voortuin
Achtertuin
48 m² (8m diep en 6m breed)

Voorzieningen in de buurt

Boodschappen0,5 km
Grote supermarkt1,1 km
Cafetaria0,5 km
Restaurant1,1 km
Huisarts1,5 km
Ziekenhuis2,1 km
Kinderdagverblijf0,4 km
BSO0,4 km
Alle voorzieningen in Over het Lange Water

Binnenkijken bij Weldamlaan 55 te Arnhem

Meer meldingen in deze omgeving

Binnenkijken bij
Vrijdag 14-11-2025
Goudensteinstraat 7, 6825CP Arnhem

Nieuw bedrijf
November 2025
Rechterenstraat 6, 6825BJ Arnhem

Nieuw bedrijf
November 2025
Wijenburglaan 18, 6825CH Arnhem

112 melding
Donderdag 13-11-2025 om 18:29
Kellendonkstraat, 6825CM Arnhem

112 melding
Donderdag 13-11-2025 om 16:04
Lage Waard, 6825JJ Arnhem

112 melding
Donderdag 13-11-2025 om 16:04
Valkhofplein, 6825GL Arnhem

112 melding
Donderdag 13-11-2025 om 16:03
Grote Durk, 6825KH Arnhem

112 melding
Donderdag 13-11-2025 om 16:03
Wijde Slag, 6825JW Arnhem

Direct een e-mail ontvangen bij nieuwe meldingen in deze regio?

Meld je dan GRATIS aan voor de Oozo Alert service voor Over het Lange Water

Instellen

Meer nieuws in Over het Lange Water

Weten hoe eenvoudig het is om af te vallen? Zonder pillen en smeersels en zonder je in het zweet te werken!
Kijk op eenvoudig-afvallen.nl

© 2012 - 2025 OOZO.nl - info@oozo.nl - Gegevens verwijderen? | Disclaimer | Privacy statement