Woning Naëll Tynnegieterstraat 31 Arnhem

Naëll Tynnegieterstraat 31, 6821EV Arnhem

Ontvang updates voor Graaf Ottoplein e.o.

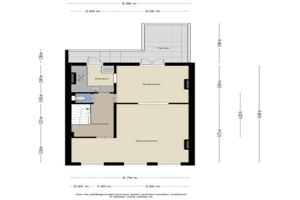
Het adres van deze woning uit 1906 is Naëll Tynnegieterstraat 31 te Arnhem. Het pand heeft een oppervlakte van 108m² en heeft 5 kamers kamers waarvan 4 slaapkamers. De geschatte waarde van deze woning is € 469.000.

Bekijk alle woningen in Graaf Ottoplein e.o.

Gegevens van Bovenwoning (appartement)

Bouwjaar
1906
Geschatte waarde
€ 469.000
Oppervlakte
108 m2
Inhoud
354 m3
Aantal kamers
5 kamers
Slaapkamers
4
Badkamers
1 badkamer en 1 apart toilet
Soort bouw
Bestaande bouw
Ligging
In centrum en in woonwijk

Voorzieningen in de buurt

Boodschappen0,2 km
Grote supermarkt0,5 km
Cafetaria0,1 km
Restaurant0,2 km
Huisarts0,4 km
Ziekenhuis1,6 km
Kinderdagverblijf0,3 km
BSO0,3 km
Alle voorzieningen in Graaf Ottoplein e.o.

Binnenkijken bij Naëll Tynnegieterstraat 31 te Arnhem

Meer meldingen in deze omgeving

112 melding
Vrijdag 31-10-2025 om 15:17
Apeldoornseweg, 6814BS Arnhem

112 melding
Donderdag 30-10-2025 om 14:47
St. Antonielaan, 6821GN Arnhem

112 melding
Donderdag 30-10-2025 om 08:18
Graaf Lodewijkstraat, Arnhem

112 melding
Donderdag 30-10-2025 om 08:18
Graaf Lodewijkstraat, Arnhem

Nieuw bedrijf
Oktober 2025
Sloetstraat 79, 6821CP Arnhem

Nieuw bedrijf
Oktober 2025
Apeldoornseweg 152, 6814BP Arnhem

Nieuw bedrijf
Oktober 2025
Graaf Lodewijkstraat 9, 6821EA Arnhem

112 melding
Woensdag 29-10-2025 om 20:48
Sloetstraat, 6821CW Arnhem

Direct een e-mail ontvangen bij nieuwe meldingen in deze regio?

Meld je dan GRATIS aan voor de Oozo Alert service voor Graaf Ottoplein e.o.

Instellen

Meer nieuws in Graaf Ottoplein e.o.

Weten hoe eenvoudig het is om af te vallen? Zonder pillen en smeersels en zonder je in het zweet te werken!
Kijk op eenvoudig-afvallen.nl

© 2012 - 2025 OOZO.nl - info@oozo.nl - Gegevens verwijderen? | Disclaimer | Privacy statement