Woning Huijghenslaan 3 Arnhem

Huijghenslaan 3, 6824JA Arnhem

Ontvang updates voor Angerenstein

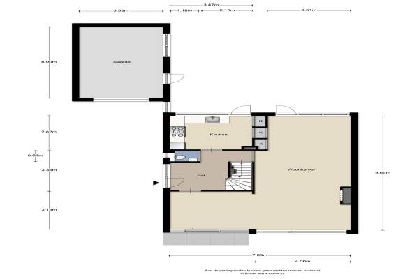
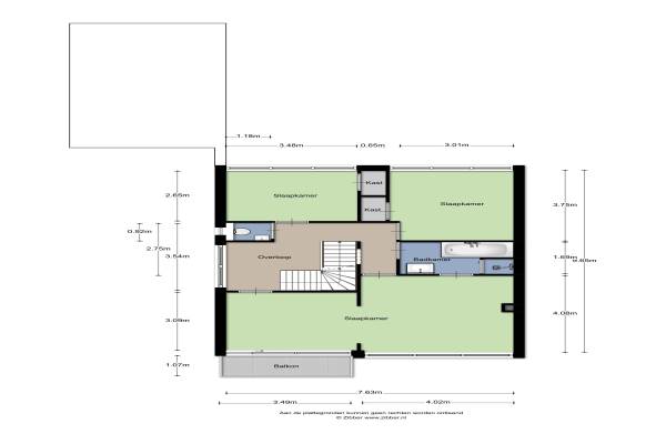
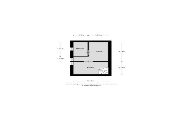
Het adres van deze woning uit 1954 is Huijghenslaan 3 te Arnhem. Het pand heeft een oppervlakte van 215m² en een perceeloppervlakte van 521m² en heeft 6 kamers kamers waarvan 5 slaapkamers. De geschatte waarde van deze woning is € 615.000.

Bekijk alle woningen in Angerenstein

Gegevens van Eengezinswoning, 2-onder-1-kapwoning

Bouwjaar
1954
Geschatte waarde
€ 615.000
Oppervlakte
215 m2
Inhoud
742 m3
Aantal kamers
6 kamers
Slaapkamers
5
Badkamers
2 aparte toiletten
Soort bouw
Bestaande bouw
Eigendomssituatie
Volle eigendom
Ligging
Aan drukke weg en in woonwijk
Tuin
Achtertuin en voortuin
Achtertuin
187 m² (0,17m diep en 0,11m breed)

Voorzieningen in de buurt

Boodschappen0,5 km
Grote supermarkt0,8 km
Cafetaria0,6 km
Restaurant0,8 km
Huisarts0,7 km
Ziekenhuis2,6 km
Kinderdagverblijf0,3 km
BSO0,4 km
Alle voorzieningen in Angerenstein

Binnenkijken bij Huijghenslaan 3 te Arnhem

Meer meldingen in deze omgeving

112 melding
Dinsdag 26-5-2026 om 03:09
Lippe Biesterfeldstraat, Arnhem

Nieuw bedrijf
Mei 2026
Laan van Klarenbeek 64, 6824JS Arnhem

Binnenkijken bij
Zondag 10-5-2026
Prümelaan 53, 6824HR Arnhem

Binnenkijken bij
Vrijdag 8-5-2026
Karthuizerstraat 68, 6824KD Arnhem

Nieuw bedrijf
Mei 2026
Bernhardlaan 114A, 6824LA Arnhem

112 melding
Woensdag 29-4-2026 om 14:57
Van der Duyn van Maasdamlaan, 6824HW Arnhem

112 melding
Woensdag 29-4-2026 om 14:57
Van der Duyn van Maasdamlaan, 6824HW Arnhem

112 melding
Woensdag 29-4-2026 om 14:57
Van der Duyn van Maasdamlaan, 6824HW Arnhem

Direct een e-mail ontvangen bij nieuwe meldingen in deze regio?

Meld je dan GRATIS aan voor de Oozo Alert service voor Angerenstein

Instellen

Meer nieuws in Angerenstein

Weten hoe eenvoudig het is om af te vallen? Zonder pillen en smeersels en zonder je in het zweet te werken!
Kijk op eenvoudig-afvallen.nl

© 2012 - 2026 OOZO.nl - info@oozo.nl - Gegevens verwijderen? | Disclaimer | Privacy statement