Woning Novalaan 22 Arnhem

Novalaan 22, 6824EM Arnhem

Ontvang updates voor Plattenburg

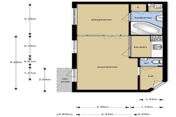
Het adres van deze woning uit 1950 is Novalaan 22 te Arnhem. Het pand heeft een oppervlakte van 43m² en heeft 2 kamers kamers waarvan 1 slaapkamers. De geschatte waarde van deze woning is € 105.000.

Bekijk alle woningen in Plattenburg

Gegevens van Portiekflat (appartement)

Bouwjaar
1950
Geschatte waarde
€ 105.000
Oppervlakte
43 m2
Inhoud
143 m3
Aantal kamers
2 kamers
Slaapkamers
1
Badkamers
1 badkamer en 1 apart toilet
Soort bouw
Bestaande bouw
Eigendomssituatie
Volle eigendom

Voorzieningen in de buurt

Boodschappen0,3 km
Grote supermarkt1,0 km
Cafetaria0,4 km
Restaurant0,8 km
Huisarts0,6 km
Ziekenhuis3,0 km
Kinderdagverblijf0,2 km
BSO0,4 km
Alle voorzieningen in Plattenburg

Binnenkijken bij Novalaan 22 te Arnhem

Meer meldingen in deze omgeving

Faillissement
Woensdag 13-5-2026
Wichard van Pontlaan 7, 6824GC Arnhem

Nieuw bedrijf
Mei 2026
Reinaldstraat 11, 6824GN Arnhem

Binnenkijken bij
Zondag 10-5-2026
Wichard van Pontlaan 303, 6824GL Arnhem

Binnenkijken bij
Vrijdag 8-5-2026
Wichard van Pontlaan 231, 6824GJ Arnhem

Binnenkijken bij
Dinsdag 5-5-2026
Oude Velperweg 33, 6824HB Arnhem

Binnenkijken bij
Dinsdag 5-5-2026
Wichard van Pontlaan 277, 6824GK Arnhem

Binnenkijken bij
Dinsdag 5-5-2026
Oude Velperweg 4, 6824HD Arnhem

Binnenkijken bij
Dinsdag 5-5-2026
Plattenburgerweg 47, 6824ES Arnhem

Direct een e-mail ontvangen bij nieuwe meldingen in deze regio?

Meld je dan GRATIS aan voor de Oozo Alert service voor Plattenburg

Instellen

Meer nieuws in Plattenburg

Weten hoe eenvoudig het is om af te vallen? Zonder pillen en smeersels en zonder je in het zweet te werken!
Kijk op eenvoudig-afvallen.nl

© 2012 - 2026 OOZO.nl - info@oozo.nl - Gegevens verwijderen? | Disclaimer | Privacy statement