Woning Orionsingel 242 Arnhem

Orionsingel 242, 6832GL Arnhem

Ontvang updates voor Eimersweide

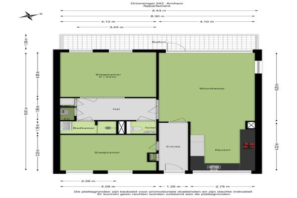
Het adres van deze woning uit 1971 is Orionsingel 242 te Arnhem. Het pand heeft een oppervlakte van 88m² en heeft 3 kamers kamers waarvan 2 slaapkamers. De geschatte waarde van deze woning is € 275.000.

Bekijk alle woningen in Eimersweide

Gegevens van Galerijflat (appartement)

Bouwjaar
1971
Geschatte waarde
€ 275.000
Oppervlakte
88 m2
Inhoud
286 m3
Aantal kamers
3 kamers
Slaapkamers
2
Badkamers
1 badkamer en 1 apart toilet
Soort bouw
Bestaande bouw
Eigendomssituatie
Volle eigendom
Ligging
Beschutte ligging en in woonwijk

Voorzieningen in de buurt

Binnenkijken bij Orionsingel 242 te Arnhem

Meer meldingen in deze omgeving

112 melding
Donderdag 27-11-2025 om 16:42
Orionsingel, 6832GK Arnhem

112 melding
Donderdag 27-11-2025 om 16:23
Siriusdreef, 6832GV Arnhem

112 melding
Woensdag 26-11-2025 om 13:48
Orionsingel, 6832GA Arnhem

112 melding
Woensdag 26-11-2025 om 13:48
Orionsingel, 6832GA Arnhem

112 melding
Woensdag 26-11-2025 om 13:38
Eimerssingel-West, 6832EW Arnhem

112 melding
Woensdag 26-11-2025 om 13:38
Eimerssingel-West, 6832EW Arnhem

112 melding
Woensdag 26-11-2025 om 13:23
Zeegsingel, Arnhem

112 melding
Woensdag 26-11-2025 om 09:31
Orionsingel, 6832GK Arnhem

Direct een e-mail ontvangen bij nieuwe meldingen in deze regio?

Meld je dan GRATIS aan voor de Oozo Alert service voor Eimersweide

Instellen

Meer nieuws in Eimersweide

Weten hoe eenvoudig het is om af te vallen? Zonder pillen en smeersels en zonder je in het zweet te werken!
Kijk op eenvoudig-afvallen.nl

© 2012 - 2025 OOZO.nl - info@oozo.nl - Gegevens verwijderen? | Disclaimer | Privacy statement