Woning Nijlandstraat 68 Assen

Nijlandstraat 68, 9401AE Assen

Ontvang updates voor Galgenveld

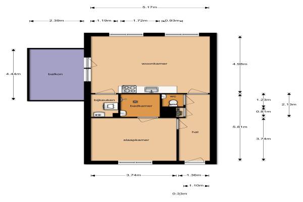
Het adres van deze woning uit 2009 is Nijlandstraat 68 te Assen. Het pand heeft een oppervlakte van 56m² en heeft 2 kamers kamers waarvan 1 slaapkamers. De geschatte waarde van deze woning is € 155.000.

Bekijk alle woningen in Galgenveld

Gegevens van Galerijflat (appartement)

Bouwjaar
2009
Geschatte waarde
€ 155.000
Oppervlakte
56 m2
Inhoud
188 m3
Aantal kamers
2 kamers
Slaapkamers
1
Badkamers
1 apart toilet
Soort bouw
Bestaande bouw
Eigendomssituatie
Volle eigendom
Ligging
In centrum

Voorzieningen in de buurt

Boodschappen0,1 km
Grote supermarkt0,2 km
Cafetaria0,1 km
Restaurant0,1 km
Huisarts0,9 km
Ziekenhuis1,9 km
Kinderdagverblijf0,5 km
BSO0,6 km
Alle voorzieningen in Galgenveld

Binnenkijken bij Nijlandstraat 68 te Assen

Meer meldingen in deze omgeving

112 melding
Zondag 23-11-2025 om 13:58
Kloekhorststraat, Assen

112 melding
Zondag 23-11-2025 om 13:54
Kloekhorststraat, Assen

Binnenkijken bij
Dinsdag 11-11-2025
Doevenkamp 69, 9401MB Assen

Binnenkijken bij
Dinsdag 11-11-2025
Poststraat 36, 9401BT Assen

Nieuw bedrijf
Oktober 2025
Noordersingel 33, 9401JW Assen

Nieuw bedrijf
Oktober 2025
Oude Poststraat 54, 9401AV Assen

Nieuw bedrijf
Oktober 2025
Citadel 74, 9401BZ Assen

112 melding
Zaterdag 25-10-2025 om 07:43
Citadel, Assen

Direct een e-mail ontvangen bij nieuwe meldingen in deze regio?

Meld je dan GRATIS aan voor de Oozo Alert service voor Galgenveld

Instellen

Meer nieuws in Galgenveld

Weten hoe eenvoudig het is om af te vallen? Zonder pillen en smeersels en zonder je in het zweet te werken!
Kijk op eenvoudig-afvallen.nl

© 2012 - 2025 OOZO.nl - info@oozo.nl - Gegevens verwijderen? | Disclaimer | Privacy statement