Woning De Wouden 256 Assen

De Wouden 256, 9405HT Assen

Ontvang updates voor Baggelhuizen Midden

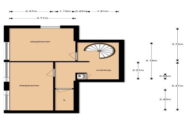
Het adres van deze woning uit 1976 is De Wouden 256 te Assen. Het pand heeft een oppervlakte van 113m² en een perceeloppervlakte van 236m² en heeft 5 kamers kamers waarvan 3 slaapkamers. De geschatte waarde van deze woning is € 185.000.

Bekijk alle woningen in Baggelhuizen Midden

Gegevens van Eengezinswoning, hoekwoning (split-level woning)

Bouwjaar
1976
Geschatte waarde
€ 185.000
Oppervlakte
113 m2
Inhoud
495 m3
Aantal kamers
5 kamers
Slaapkamers
3
Badkamers
1 badkamer en 1 apart toilet
Soort bouw
Bestaande bouw
Eigendomssituatie
Volle eigendom
Ligging
Aan rustige weg en in woonwijk
Tuin
Achtertuin
Achtertuin
109 m² (11,5m diep en 9,5m breed)

Voorzieningen in de buurt

Boodschappen0,6 km
Grote supermarkt0,6 km
Cafetaria0,6 km
Restaurant0,6 km
Huisarts2,5 km
Ziekenhuis3,4 km
Kinderdagverblijf1,2 km
BSO1,2 km
Alle voorzieningen in Baggelhuizen Midden

Binnenkijken bij De Wouden 256 te Assen

Meer meldingen in deze omgeving

Nieuw bedrijf
December 2025
Betuwe 15, 9405JH Assen

Nieuw bedrijf
December 2025
Salland 201, 9405GK Assen

Binnenkijken bij
Zaterdag 6-12-2025
De Wouden 224, 9405HS Assen

Nieuw bedrijf
December 2025
Salland 201, 9405GK Assen

Binnenkijken bij
Dinsdag 11-11-2025
Salland 124, 9405GR Assen

Nieuw bedrijf
Oktober 2025
Het Sticht 81, 9405NT Assen

Nieuw bedrijf
Oktober 2025
Betuwe 50, 9405JK Assen

Binnenkijken bij
Donderdag 9-10-2025
Het Sticht 59, 9405NT Assen

Direct een e-mail ontvangen bij nieuwe meldingen in deze regio?

Meld je dan GRATIS aan voor de Oozo Alert service voor Baggelhuizen Midden

Instellen

Meer nieuws in Baggelhuizen Midden

Weten hoe eenvoudig het is om af te vallen? Zonder pillen en smeersels en zonder je in het zweet te werken!
Kijk op eenvoudig-afvallen.nl

© 2012 - 2025 OOZO.nl - info@oozo.nl - Gegevens verwijderen? | Disclaimer | Privacy statement