Woning Virgo 4 Assen

Virgo 4, 9405RE Assen

Ontvang updates voor Sterrenbeeldenbuurt

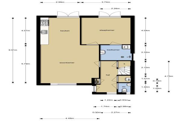
Het adres van deze woning uit 1999 is Virgo 4 te Assen. Het pand heeft een oppervlakte van 150m² en een perceeloppervlakte van 245m² en heeft 6 kamers kamers waarvan 4 slaapkamers. De geschatte waarde van deze woning is € 239.000.

Bekijk alle woningen in Sterrenbeeldenbuurt

Gegevens van Eengezinswoning, tussenwoning

Bouwjaar
1999
Geschatte waarde
€ 239.000
Oppervlakte
150 m2
Inhoud
503 m3
Aantal kamers
6 kamers
Slaapkamers
4
Badkamers
1 badkamer en 1 apart toilet
Soort bouw
Bestaande bouw
Eigendomssituatie
Volle eigendom
Ligging
Aan rustige weg en in woonwijk
Tuin
Achtertuin en voortuin
Achtertuin
109 m² (15,5m diep en 7m breed)

Voorzieningen in de buurt

Boodschappen1,1 km
Grote supermarkt1,1 km
Cafetaria1,1 km
Restaurant1,1 km
Huisarts1,6 km
Ziekenhuis5,3 km
Kinderdagverblijf1,1 km
BSO1,4 km
Alle voorzieningen in Sterrenbeeldenbuurt

Binnenkijken bij Virgo 4 te Assen

Meer meldingen in deze omgeving

Faillissement
Zaterdag 28-2-2026
Geminisingel 4, 9405RA Assen

Binnenkijken bij
Vrijdag 27-2-2026
Virgo 73, 9405RD Assen

Nieuw bedrijf
November 2025
Taurus 15, 9405RG Assen

Binnenkijken bij
Zondag 19-10-2025
Virgo 79, 9405RD Assen

Nieuw bedrijf
Juli 2025
Virgo 3, 9405RD Assen

Binnenkijken bij
Zaterdag 12-7-2025
Aquarius 9, 9405RB Assen

Binnenkijken bij
Vrijdag 6-6-2025
Virgo 71, 9405RD Assen

Binnenkijken bij
Maandag 12-5-2025
Virgo 36, 9405RE Assen

Direct een e-mail ontvangen bij nieuwe meldingen in deze regio?

Meld je dan GRATIS aan voor de Oozo Alert service voor Sterrenbeeldenbuurt

Instellen

Meer nieuws in Sterrenbeeldenbuurt

Weten hoe eenvoudig het is om af te vallen? Zonder pillen en smeersels en zonder je in het zweet te werken!
Kijk op eenvoudig-afvallen.nl

© 2012 - 2026 OOZO.nl - info@oozo.nl - Gegevens verwijderen? | Disclaimer | Privacy statement