Woning Bitse 23 Assen

Bitse 23, 9406EG Assen

Ontvang updates voor Landgoed Lariks

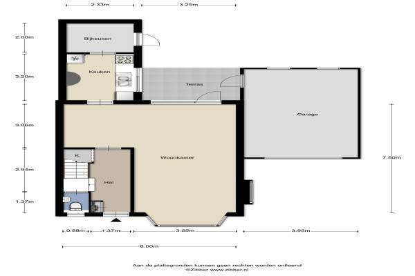
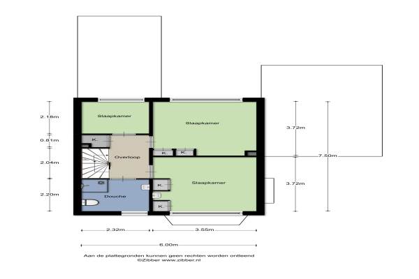
Het adres van deze woning uit 1969 is Bitse 23 te Assen. Het pand heeft een oppervlakte van 130m² en een perceeloppervlakte van 364m² en heeft 5 kamers kamers waarvan 4 slaapkamers. De geschatte waarde van deze woning is € 239.500.

Bekijk alle woningen in Landgoed Lariks

Gegevens van Eengezinswoning, 2-onder-1-kapwoning

Bouwjaar
1969
Geschatte waarde
€ 239.500
Oppervlakte
130 m2
Inhoud
370 m3
Aantal kamers
5 kamers
Slaapkamers
4
Badkamers
1 badkamer en 1 apart toilet
Soort bouw
Bestaande bouw
Eigendomssituatie
Volle eigendom
Ligging
Aan rustige weg en beschutte ligging
Tuin
Achtertuin, voortuin en zijtuin
Achtertuin
150 m² (10m diep en 15m breed)

Voorzieningen in de buurt

Boodschappen0,7 km
Grote supermarkt1,1 km
Cafetaria0,8 km
Restaurant0,6 km
Huisarts0,9 km
Ziekenhuis2,9 km
Kinderdagverblijf0,6 km
BSO0,5 km
Alle voorzieningen in Landgoed Lariks

Binnenkijken bij Bitse 23 te Assen

Meer meldingen in deze omgeving

Nieuw bedrijf
December 2025
Maria in Campislaan 249, 9406JG Assen

Binnenkijken bij
Zaterdag 20-12-2025
Maria in Campislaan 43, 9406JA Assen

Binnenkijken bij
Zondag 7-12-2025
Maria in Campislaan 141, 9406JD Assen

Binnenkijken bij
Vrijdag 28-11-2025
Maria in Campislaan 207, 9406JE Assen

Nieuw bedrijf
Oktober 2025
Holthe 22, 9406EJ Assen

112 melding
Zaterdag 6-9-2025 om 13:54
Slinge, Assen

112 melding
Zaterdag 6-9-2025 om 13:51
Slinge, Assen

112 melding
Vrijdag 29-8-2025 om 12:09
Slinge, Assen

Direct een e-mail ontvangen bij nieuwe meldingen in deze regio?

Meld je dan GRATIS aan voor de Oozo Alert service voor Landgoed Lariks

Instellen

Meer nieuws in Landgoed Lariks

Weten hoe eenvoudig het is om af te vallen? Zonder pillen en smeersels en zonder je in het zweet te werken!
Kijk op eenvoudig-afvallen.nl

© 2012 - 2026 OOZO.nl - info@oozo.nl - Gegevens verwijderen? | Disclaimer | Privacy statement