Woning Peter van Anrooystraat 15 Assen

Peter van Anrooystraat 15, 9402TR Assen

Ontvang updates voor Componistenbuurt Oost

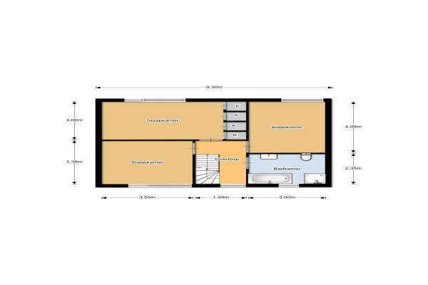
Het adres van deze woning uit 1972 is Peter van Anrooystraat 15 te Assen. Het pand heeft een oppervlakte van 167m² en een perceeloppervlakte van 486m² en heeft 7 kamers kamers waarvan 5 slaapkamers. De geschatte waarde van deze woning is € 325.000.

Bekijk alle woningen in Componistenbuurt Oost

Gegevens van Eengezinswoning, vrijstaande woning

Bouwjaar
1972
Geschatte waarde
€ 325.000
Oppervlakte
167 m2
Inhoud
593 m3
Aantal kamers
7 kamers
Slaapkamers
5
Badkamers
1 badkamer en 1 apart toilet
Soort bouw
Bestaande bouw
Eigendomssituatie
Volle eigendom
Ligging
Aan rustige weg, in woonwijk en beschutte ligging
Tuin
Achtertuin, voortuin en zijtuin
Achtertuin
138 m² (11,5m diep en 12m breed)

Voorzieningen in de buurt

Boodschappen0,3 km
Grote supermarkt0,3 km
Cafetaria1,1 km
Restaurant1,0 km
Huisarts0,7 km
Ziekenhuis1,3 km
Kinderdagverblijf0,5 km
BSO0,5 km
Alle voorzieningen in Componistenbuurt Oost

Binnenkijken bij Peter van Anrooystraat 15 te Assen

Meer meldingen in deze omgeving

Nieuw bedrijf
Oktober 2025
Smetanalaan 440, 9402XT Assen

Binnenkijken bij
Maandag 22-9-2025
Smetanalaan 188, 9402XK Assen

Binnenkijken bij
Vrijdag 19-9-2025
Smetanalaan 308, 9402XN Assen

112 melding
Dinsdag 16-9-2025 om 10:34
Smetanalaan, Assen

112 melding
Zondag 14-9-2025 om 03:06
Obrechtlaan, Assen

112 melding
Woensdag 3-9-2025 om 10:34
Brahmsstraat, 9402VT Assen

112 melding
Woensdag 27-8-2025 om 10:36
Smetanalaan, Assen

112 melding
Zaterdag 23-8-2025 om 23:06
Smetanalaan, Assen

Direct een e-mail ontvangen bij nieuwe meldingen in deze regio?

Meld je dan GRATIS aan voor de Oozo Alert service voor Componistenbuurt Oost

Instellen

Meer nieuws in Componistenbuurt Oost

Weten hoe eenvoudig het is om af te vallen? Zonder pillen en smeersels en zonder je in het zweet te werken!
Kijk op eenvoudig-afvallen.nl

© 2012 - 2025 OOZO.nl - info@oozo.nl - Gegevens verwijderen? | Disclaimer | Privacy statement