Woning Gerard Doulaan 23 Baarn

Gerard Doulaan 23, 3741RG Baarn

Ontvang updates voor Schilderswijk

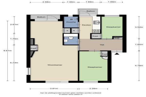
Het adres van deze woning uit 1959 is Gerard Doulaan 23 te Baarn. Het pand heeft een oppervlakte van 69m² en heeft 3 kamers kamers waarvan 2 slaapkamers. De geschatte waarde van deze woning is € 198.500.

Bekijk alle woningen in Schilderswijk

Gegevens van Bovenwoning (appartement)

Bouwjaar
1959
Geschatte waarde
€ 198.500
Oppervlakte
69 m2
Inhoud
226 m3
Aantal kamers
3 kamers
Slaapkamers
2
Badkamers
1 apart toilet
Soort bouw
Bestaande bouw
Eigendomssituatie
Volle eigendom
Ligging
Aan rustige weg en in woonwijk

Voorzieningen in de buurt

Boodschappen0,3 km
Grote supermarkt0,5 km
Cafetaria0,5 km
Restaurant0,5 km
Huisarts0,9 km
Ziekenhuis1,5 km
Kinderdagverblijf0,8 km
BSO0,2 km
Alle voorzieningen in Schilderswijk

Binnenkijken bij Gerard Doulaan 23 te Baarn

Meer meldingen in deze omgeving

112 melding
Dinsdag 13-1-2026 om 11:46
Baarnsche dijk, Baarn

Faillissement
Donderdag 8-1-2026
Baarnsche dijk 12A, 3741LS Baarn

112 melding
Donderdag 1-1-2026 om 02:14
Johannes Vermeerlaan, Baarn

112 melding
Zaterdag 20-12-2025 om 10:14
Weteringstraat, Baarn

Faillissement
Woensdag 17-12-2025
Baarnsche dijk 12A, 3741LS BAARN

Nieuw bedrijf
December 2025
Pieter de Hooghlaan 29, 3741RL Baarn

Onroerend goed
Woensdag 10-12-2025
Baarnsche dijk 6-B 15, 3741LR Baarn

112 melding
Woensdag 10-12-2025 om 00:18
Rembrandtlaan, Baarn

Direct een e-mail ontvangen bij nieuwe meldingen in deze regio?

Meld je dan GRATIS aan voor de Oozo Alert service voor Schilderswijk

Instellen

Meer nieuws in Schilderswijk

Weten hoe eenvoudig het is om af te vallen? Zonder pillen en smeersels en zonder je in het zweet te werken!
Kijk op eenvoudig-afvallen.nl

© 2012 - 2026 OOZO.nl - info@oozo.nl - Gegevens verwijderen? | Disclaimer | Privacy statement