Woning Koraallaan 56 Barendrecht

Koraallaan 56, 2992GX Barendrecht

Ontvang updates voor Nieuweland 5

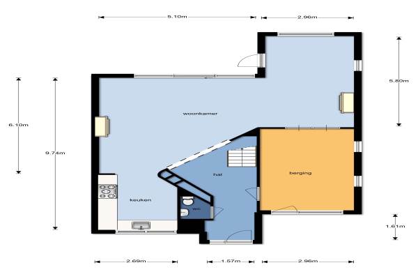
Het adres van deze woning uit 1998 is Koraallaan 56 te Barendrecht. Het pand heeft een oppervlakte van 145m² en een perceeloppervlakte van 362m² en heeft 5 kamers kamers waarvan 3 slaapkamers. De geschatte waarde van deze woning is € 425.000.

Bekijk alle woningen in Nieuweland 5

Gegevens van Eengezinswoning, 2-onder-1-kapwoning

Bouwjaar
1998
Geschatte waarde
€ 425.000
Oppervlakte
145 m2
Inhoud
550 m3
Aantal kamers
5 kamers
Slaapkamers
3
Badkamers
1 badkamer en 1 apart toilet
Soort bouw
Bestaande bouw
Eigendomssituatie
Volle eigendom
Ligging
Aan water, aan rustige weg, in woonwijk, vrij uitzicht en open ligging
Tuin
Achtertuin, voortuin en zijtuin
Achtertuin
160 m² (14,5m diep en 11m breed)

Voorzieningen in de buurt

Boodschappen0,5 km
Grote supermarkt0,7 km
Cafetaria0,7 km
Restaurant0,5 km
Huisarts0,8 km
Ziekenhuis2,6 km
Kinderdagverblijf0,5 km
BSO0,5 km
Alle voorzieningen in Nieuweland 5

Binnenkijken bij Koraallaan 56 te Barendrecht

Meer meldingen in deze omgeving

112 melding
Zaterdag 27-12-2025 om 15:24
Koraallaan, 2992GX Barendrecht

112 melding
Zondag 21-12-2025 om 06:01
Cantatelaan, 2992GM Barendrecht

Binnenkijken bij
Zaterdag 20-12-2025
Voordijk 257, 2992AL Barendrecht

Binnenkijken bij
Woensdag 3-12-2025
Cantatelaan 27, 2992GM Barendrecht

Binnenkijken bij
Vrijdag 28-11-2025
Mazurkastraat 30, 2992GP Barendrecht

112 melding
Dinsdag 25-11-2025 om 01:04
Polkastraat, 2992GV Barendrecht

112 melding
Zaterdag 22-11-2025 om 18:05
Nocturnestraat, 2992GZ Barendrecht

112 melding
Zaterdag 22-11-2025 om 12:11
Serenadelaan, 2992GT Barendrecht

Direct een e-mail ontvangen bij nieuwe meldingen in deze regio?

Meld je dan GRATIS aan voor de Oozo Alert service voor Nieuweland 5

Instellen

Meer nieuws in Nieuweland 5

Weten hoe eenvoudig het is om af te vallen? Zonder pillen en smeersels en zonder je in het zweet te werken!
Kijk op eenvoudig-afvallen.nl

© 2012 - 2025 OOZO.nl - info@oozo.nl - Gegevens verwijderen? | Disclaimer | Privacy statement