Woning Sonatelaan 44 Barendrecht

Sonatelaan 44, 2992GS Barendrecht

Ontvang updates voor Nieuweland 5

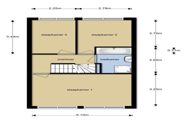
Het adres van deze woning uit 1996 is Sonatelaan 44 te Barendrecht. Het pand heeft een oppervlakte van 130m² en een perceeloppervlakte van 135m² en heeft 5 kamers kamers waarvan 4 slaapkamers. De geschatte waarde van deze woning is € 319.000.

Bekijk alle woningen in Nieuweland 5

Gegevens van Eengezinswoning, tussenwoning

Bouwjaar
1996
Geschatte waarde
€ 319.000
Oppervlakte
130 m2
Inhoud
410 m3
Aantal kamers
5 kamers
Slaapkamers
4
Badkamers
1 badkamer
Soort bouw
Bestaande bouw
Eigendomssituatie
Volle eigendom
Tuin
Achtertuin en voortuin

Voorzieningen in de buurt

Boodschappen0,5 km
Grote supermarkt0,7 km
Cafetaria0,7 km
Restaurant0,5 km
Huisarts0,8 km
Ziekenhuis2,6 km
Kinderdagverblijf0,5 km
BSO0,5 km
Alle voorzieningen in Nieuweland 5

Binnenkijken bij Sonatelaan 44 te Barendrecht

Meer meldingen in deze omgeving

Binnenkijken bij
Dinsdag 11-11-2025
Serenadelaan 8, 2992GE Barendrecht

Binnenkijken bij
Dinsdag 11-11-2025
Serenadelaan 91, 2992GT Barendrecht

112 melding
Zaterdag 1-11-2025 om 02:03
Cantatelaan, 2992GM Barendrecht

Nieuw bedrijf
Oktober 2025
Serenadelaan 37, 2992GE Barendrecht

112 melding
Maandag 27-10-2025 om 09:52
Ouvertureweg, 2992GC Barendrecht

112 melding
Vrijdag 24-10-2025 om 08:33
Koraallaan, 2992GX Barendrecht

Binnenkijken bij
Vrijdag 17-10-2025
Mazurkastraat 22, 2992GP Barendrecht

112 melding
Zondag 12-10-2025 om 11:22
Koraallaan, 2992GX Barendrecht

Direct een e-mail ontvangen bij nieuwe meldingen in deze regio?

Meld je dan GRATIS aan voor de Oozo Alert service voor Nieuweland 5

Instellen

Meer nieuws in Nieuweland 5

Weten hoe eenvoudig het is om af te vallen? Zonder pillen en smeersels en zonder je in het zweet te werken!
Kijk op eenvoudig-afvallen.nl

© 2012 - 2025 OOZO.nl - info@oozo.nl - Gegevens verwijderen? | Disclaimer | Privacy statement