Woning Hoge Boeschoterweg 76 Garderen

Hoge Boeschoterweg 76, 3886PR Garderen

Ontvang updates voor Buitengebied Garderen

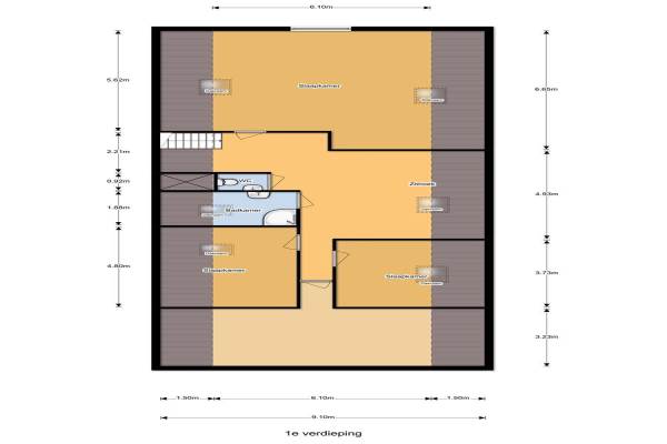
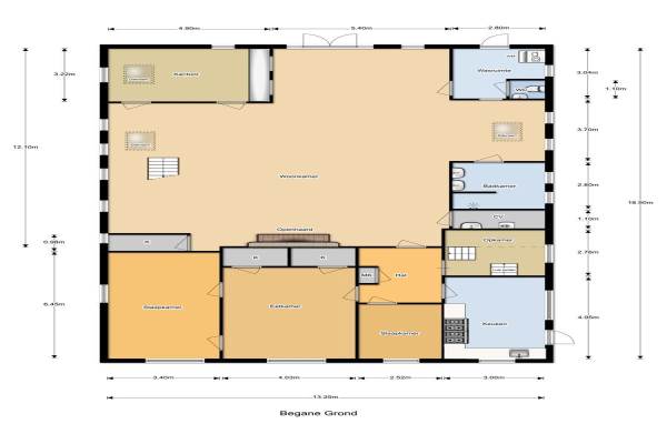
Het adres van deze woning uit 1856 is Hoge Boeschoterweg 76 te Garderen. Het pand heeft een oppervlakte van 363m² en een perceeloppervlakte van 12610m² en heeft 10 kamers kamers waarvan 5 slaapkamers. De geschatte waarde van deze woning is € 869.000.

Bekijk alle woningen in Buitengebied Garderen

Gegevens van Woonboerderij, vrijstaande woning

Bouwjaar
1856
Geschatte waarde
€ 869.000
Oppervlakte
363 m2
Inhoud
1388 m3
Aantal kamers
10 kamers
Slaapkamers
5
Badkamers
2 badkamers en 2 aparte toiletten
Soort bouw
Bestaande bouw
Eigendomssituatie
Erfpacht (einddatum erfpacht: 31-08-2046)
Ligging
Aan bosrand, aan rustige weg, beschutte ligging, in bosrijke omgeving en landelijk gelegen

Voorzieningen in de buurt

Boodschappen1,1 km
Grote supermarkt1,0 km
Cafetaria1,0 km
Restaurant0,8 km
Huisarts1,3 km
Ziekenhuis8,4 km
Kinderdagverblijf1,2 km
BSO1,4 km
Alle voorzieningen in Buitengebied Garderen

Binnenkijken bij Hoge Boeschoterweg 76 te Garderen

Meer meldingen in deze omgeving

Binnenkijken bij
Dinsdag 11-11-2025
Speulderbosweg 35, 3886AN Garderen

Nieuw bedrijf
November 2025
Paleisweg 8, 3886LC Garderen

Nieuw bedrijf
Oktober 2025
Hooiweg 23, 3886PM Garderen

112 melding
Vrijdag 17-10-2025 om 14:35
Hoge Boeschoterweg, Garderen

112 melding
Vrijdag 17-10-2025 om 14:35
Hoge Boeschoterweg, Garderen

Nieuw bedrijf
Oktober 2025
't Boerenerf 38, 3886BA Garderen

112 melding
Donderdag 16-10-2025 om 05:07
Hogesteeg, 3886MA Garderen

112 melding
Donderdag 16-10-2025 om 05:07
Hogesteeg, 3886MA Garderen

Direct een e-mail ontvangen bij nieuwe meldingen in deze regio?

Meld je dan GRATIS aan voor de Oozo Alert service voor Buitengebied Garderen

Instellen

Meer nieuws in Buitengebied Garderen

Weten hoe eenvoudig het is om af te vallen? Zonder pillen en smeersels en zonder je in het zweet te werken!
Kijk op eenvoudig-afvallen.nl

© 2012 - 2025 OOZO.nl - info@oozo.nl - Gegevens verwijderen? | Disclaimer | Privacy statement