Woning Harremaatweg 1 Voorthuizen

Harremaatweg 1, 3781NH Voorthuizen

Ontvang updates voor Haarkamp

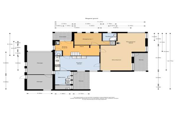
Het adres van deze woning uit 1977 is Harremaatweg 1 te Voorthuizen. Het pand heeft een oppervlakte van 196m² en een perceeloppervlakte van 1280m² en heeft 7 kamers kamers waarvan 6 slaapkamers. De geschatte waarde van deze woning is € 539.000.

Bekijk alle woningen in Haarkamp

Gegevens van Villa, vrijstaande woning

Bouwjaar
1977
Geschatte waarde
€ 539.000
Oppervlakte
196 m2
Inhoud
744 m3
Aantal kamers
7 kamers
Slaapkamers
6
Badkamers
2 badkamers en 1 apart toilet
Soort bouw
Bestaande bouw
Eigendomssituatie
Volle eigendom
Ligging
Beschutte ligging
Tuin
Tuin rondom

Voorzieningen in de buurt

Boodschappen0,5 km
Grote supermarkt0,5 km
Cafetaria0,3 km
Restaurant0,4 km
Huisarts0,5 km
Ziekenhuis7,2 km
Kinderdagverblijf0,5 km
BSO0,5 km
Alle voorzieningen in Haarkamp

Binnenkijken bij Harremaatweg 1 te Voorthuizen

Meer meldingen in deze omgeving

112 melding
Donderdag 1-1-2026 om 11:26
Kamphuisstraat, 3781CA Voorthuizen

Binnenkijken bij
Woensdag 3-12-2025
Jan de Jagerweg 32, 3781BR Voorthuizen

Binnenkijken bij
Zondag 12-10-2025
Molenpark 18, 3781GZ Voorthuizen

Binnenkijken bij
Woensdag 1-10-2025
Molenpark 1, 3781GX Voorthuizen

Nieuw bedrijf
September 2025
Kievitsstraat 17, 3781BZ Voorthuizen

112 melding
Zondag 31-8-2025 om 21:17
Haarkampstraat, Voorthuizen

Binnenkijken bij
Vrijdag 18-7-2025
Budkestraat 23, 3781BX Voorthuizen

Nieuw bedrijf
Juli 2025
Hamburgerstraat 16, 3781BW Voorthuizen

Direct een e-mail ontvangen bij nieuwe meldingen in deze regio?

Meld je dan GRATIS aan voor de Oozo Alert service voor Haarkamp

Instellen

Meer nieuws in Haarkamp

Weten hoe eenvoudig het is om af te vallen? Zonder pillen en smeersels en zonder je in het zweet te werken!
Kijk op eenvoudig-afvallen.nl

© 2012 - 2026 OOZO.nl - info@oozo.nl - Gegevens verwijderen? | Disclaimer | Privacy statement