Woning van der Veurweg 8 Beek

van der Veurweg 8, 6573EB Beek

Ontvang updates voor Beek-Midden

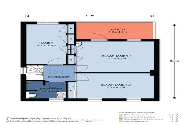
Het adres van deze woning uit 1953 is van der Veurweg 8 te Beek. Het pand heeft een oppervlakte van 114m² en een perceeloppervlakte van 380m² en heeft 7 kamers kamers waarvan 3 slaapkamers. De geschatte waarde van deze woning is € 445.000.

Bekijk alle woningen in Beek-Midden

Gegevens van Eengezinswoning, 2-onder-1-kapwoning

Bouwjaar
1953
Geschatte waarde
€ 445.000
Oppervlakte
114 m2
Inhoud
500 m3
Aantal kamers
7 kamers
Slaapkamers
3
Badkamers
1 badkamer en 1 apart toilet
Soort bouw
Bestaande bouw
Eigendomssituatie
Volle eigendom
Ligging
Aan bosrand, aan rustige weg, vrij uitzicht en in bosrijke omgeving
Tuin
Achtertuin, voortuin en zijtuin
Achtertuin
200 m² (20m diep en 10m breed)

Voorzieningen in de buurt

Boodschappen0,3 km
Grote supermarkt0,3 km
Cafetaria0,3 km
Restaurant0,4 km
Huisarts0,4 km
Ziekenhuis6,0 km
Kinderdagverblijf0,4 km
BSO0,4 km
Alle voorzieningen in Beek-Midden

Binnenkijken bij van der Veurweg 8 te Beek

Meer meldingen in deze omgeving

Onroerend goed
Vrijdag 27-3-2026
Rijksstraatweg 171, 6573CN Beek (Gem. Berg en Dal)

Nieuw bedrijf
Maart 2026
Colonel Ekmanstraat 13, 6573BM Beek

Binnenkijken bij
Maandag 23-3-2026
van der Veurweg 16, 6573EB Beek (Gem. Berg en Dal)

Binnenkijken bij
Maandag 9-3-2026
van der Veurweg 21, 6573EB Beek (Gem. Berg en Dal)

Nieuw bedrijf
Maart 2026
Rijksstraatweg 19306, 6573CR Beek

Nieuw bedrijf
Maart 2026
Rijksstraatweg 155a, 6573CM Beek

Binnenkijken bij
Vrijdag 27-2-2026
Esdoornstraat 22, 6573WX Beek (Gem. Berg en Dal)

Nieuw bedrijf
Februari 2026
Kerkberg 40, 6573DN Beek

Direct een e-mail ontvangen bij nieuwe meldingen in deze regio?

Meld je dan GRATIS aan voor de Oozo Alert service voor Beek-Midden

Instellen

Meer nieuws in Beek-Midden

Weten hoe eenvoudig het is om af te vallen? Zonder pillen en smeersels en zonder je in het zweet te werken!
Kijk op eenvoudig-afvallen.nl

© 2012 - 2026 OOZO.nl - info@oozo.nl - Gegevens verwijderen? | Disclaimer | Privacy statement