Woning Heerbaan 214 Millingen aan de Rijn

Heerbaan 214, 6566EW Millingen aan de Rijn

Ontvang updates voor Millingen aan de Rijn-West

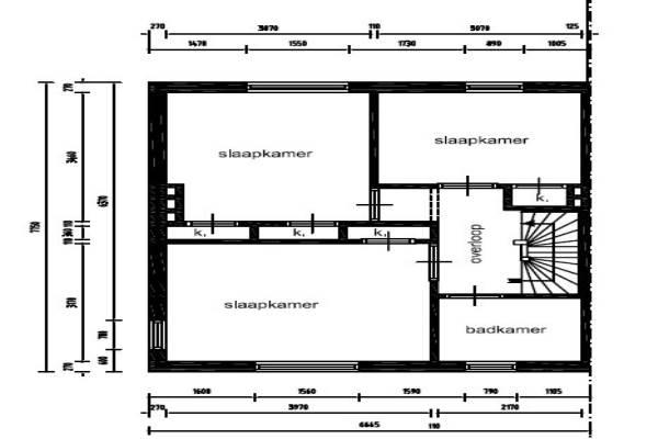
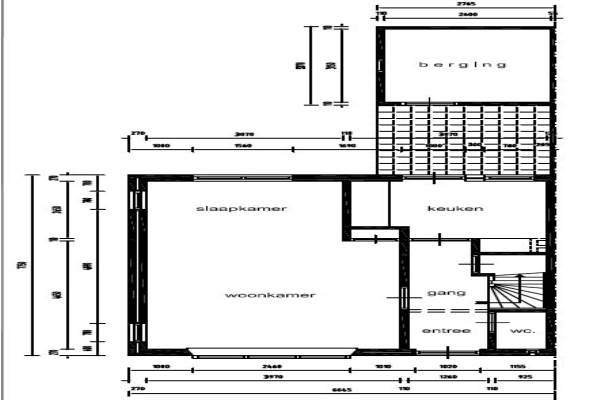
Het adres van deze woning uit 1951 is Heerbaan 214 te Millingen aan de Rijn. Het pand heeft een oppervlakte van 89m² en een perceeloppervlakte van 315m² en heeft 4 kamers kamers waarvan 3 slaapkamers. De geschatte waarde van deze woning is € 185.000.

Bekijk alle woningen in Millingen aan de Rijn-West

Gegevens van Eengezinswoning, hoekwoning

Bouwjaar
1951
Geschatte waarde
€ 185.000
Oppervlakte
89 m2
Inhoud
340 m3
Aantal kamers
4 kamers
Slaapkamers
3
Badkamers
1 badkamer en 1 apart toilet
Soort bouw
Bestaande bouw
Eigendomssituatie
Volle eigendom
Ligging
Aan drukke weg en beschutte ligging
Tuin
Achtertuin, voortuin en zijtuin
Achtertuin
149 m² (16,5m diep en 9m breed)

Voorzieningen in de buurt

Boodschappen0,8 km
Grote supermarkt0,7 km
Cafetaria0,8 km
Restaurant0,6 km
Huisarts0,6 km
Ziekenhuis17,5 km
Kinderdagverblijf0,9 km
BSO0,9 km
Alle voorzieningen in Millingen aan de Rijn-West

Binnenkijken bij Heerbaan 214 te Millingen aan de Rijn

Meer meldingen in deze omgeving

Binnenkijken bij
Vrijdag 28-11-2025
Zeelandsestraat 43, 6566DG Millingen aan de Rijn

112 melding
Maandag 24-11-2025 om 09:04
Kennedystraat, 6566DX Millingen aan de Rijn

112 melding
Maandag 24-11-2025 om 09:02
Kennedystraat, 6566DX Millingen aan de Rijn

Nieuw bedrijf
November 2025
Heerenland 5, 6566KN Millingen aan de Rijn

Nieuw bedrijf
November 2025
Zeelandsestraat 1, 6566DE Millingen aan de Rijn

Nieuw bedrijf
November 2025
Zeelandsestraat 1, 6566DE Millingen aan de Rijn

Binnenkijken bij
Dinsdag 11-11-2025
Heerbaan 193, 6566EK Millingen aan de Rijn

112 melding
Zaterdag 1-11-2025 om 09:25
Crumpsestraat, Millingen aan de Rijn

Direct een e-mail ontvangen bij nieuwe meldingen in deze regio?

Meld je dan GRATIS aan voor de Oozo Alert service voor Millingen aan de Rijn-West

Instellen

Meer nieuws in Millingen aan de Rijn-West

Weten hoe eenvoudig het is om af te vallen? Zonder pillen en smeersels en zonder je in het zweet te werken!
Kijk op eenvoudig-afvallen.nl

© 2012 - 2025 OOZO.nl - info@oozo.nl - Gegevens verwijderen? | Disclaimer | Privacy statement