Woning Zeelandsestraat 25 Millingen aan de Rijn

Zeelandsestraat 25, 6566DE Millingen aan de Rijn

Ontvang updates voor Millingen aan de Rijn-West

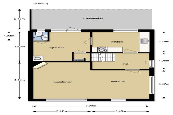
Het adres van deze woning uit 1957 is Zeelandsestraat 25 te Millingen aan de Rijn. Het pand heeft een oppervlakte van 123m² en een perceeloppervlakte van 317m² en heeft 5 kamers kamers waarvan 4 slaapkamers. De geschatte waarde van deze woning is € 269.500.

Bekijk alle woningen in Millingen aan de Rijn-West

Gegevens van Eengezinswoning, 2-onder-1-kapwoning

Bouwjaar
1957
Geschatte waarde
€ 269.500
Oppervlakte
123 m2
Inhoud
463 m3
Aantal kamers
5 kamers
Slaapkamers
4
Badkamers
1 badkamer en 1 apart toilet
Soort bouw
Bestaande bouw
Eigendomssituatie
Volle eigendom
Ligging
Aan rustige weg en in woonwijk
Tuin
Achtertuin, voortuin en zijtuin
Achtertuin
150 m² (12m diep en 12,5m breed)

Voorzieningen in de buurt

Boodschappen0,8 km
Grote supermarkt0,7 km
Cafetaria0,8 km
Restaurant0,6 km
Huisarts0,6 km
Ziekenhuis17,5 km
Kinderdagverblijf0,9 km
BSO0,9 km
Alle voorzieningen in Millingen aan de Rijn-West

Binnenkijken bij Zeelandsestraat 25 te Millingen aan de Rijn

Meer meldingen in deze omgeving

Binnenkijken bij
Donderdag 11-12-2025
Gengske 18, 6566WB Millingen aan de Rijn

Binnenkijken bij
Donderdag 11-12-2025
Gengske 22, 6566WB Millingen aan de Rijn

Binnenkijken bij
Maandag 8-12-2025
Pastoor Graatweg 43, 6566DA Millingen aan de Rijn

Binnenkijken bij
Zondag 7-12-2025
Sint Antoniusplein 3B, 6566EB Millingen aan de Rijn

Binnenkijken bij
Zondag 7-12-2025
Sint Antoniusplein 3A, 6566EB Millingen aan de Rijn

Binnenkijken bij
Vrijdag 28-11-2025
Zeelandsestraat 43, 6566DG Millingen aan de Rijn

112 melding
Maandag 24-11-2025 om 09:04
Kennedystraat, 6566DX Millingen aan de Rijn

112 melding
Maandag 24-11-2025 om 09:02
Kennedystraat, 6566DX Millingen aan de Rijn

Direct een e-mail ontvangen bij nieuwe meldingen in deze regio?

Meld je dan GRATIS aan voor de Oozo Alert service voor Millingen aan de Rijn-West

Instellen

Meer nieuws in Millingen aan de Rijn-West

Weten hoe eenvoudig het is om af te vallen? Zonder pillen en smeersels en zonder je in het zweet te werken!
Kijk op eenvoudig-afvallen.nl

© 2012 - 2025 OOZO.nl - info@oozo.nl - Gegevens verwijderen? | Disclaimer | Privacy statement