Woning Koningin Julianalaan 14 Ooij

Koningin Julianalaan 14, 6576AR Ooij

Ontvang updates voor Ooij

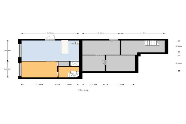
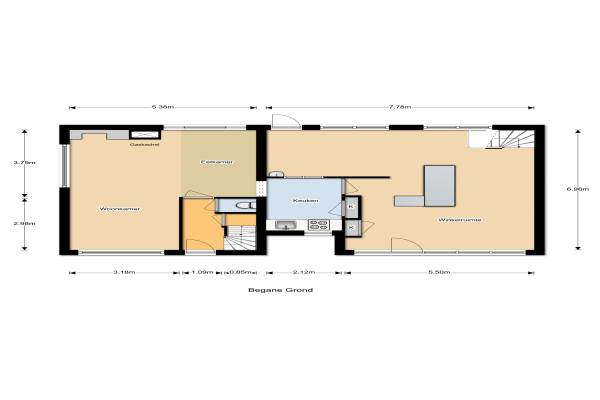
Het adres van deze woning uit 1961 is Koningin Julianalaan 14 te Ooij. Het pand heeft een oppervlakte van 127m² en een perceeloppervlakte van 660m² en heeft 9 kamers kamers waarvan 3 slaapkamers. De geschatte waarde van deze woning is € 325.000.

Bekijk alle woningen in Ooij

Gegevens van Eengezinswoning, vrijstaande woning

Bouwjaar
1961
Geschatte waarde
€ 325.000
Oppervlakte
127 m2
Inhoud
688 m3
Aantal kamers
9 kamers
Slaapkamers
3
Badkamers
1 badkamer en 1 apart toilet
Soort bouw
Bestaande bouw
Eigendomssituatie
Volle eigendom
Ligging
In centrum
Tuin
Tuin rondom

Voorzieningen in de buurt

Boodschappen0,5 km
Grote supermarkt0,5 km
Cafetaria3,8 km
Restaurant0,5 km
Huisarts0,5 km
Ziekenhuis9,2 km
Kinderdagverblijf0,5 km
BSO0,5 km
Alle voorzieningen in Ooij

Binnenkijken bij Koningin Julianalaan 14 te Ooij

Meer meldingen in deze omgeving

Binnenkijken bij
Dinsdag 11-11-2025
Alverstraat 7, 6576BV Ooij

Binnenkijken bij
Dinsdag 11-11-2025
Nassaustraat 26, 6576BR Ooij

112 melding
Zondag 2-11-2025 om 09:08
Prinses Christinastraat, 6576BD Ooij

112 melding
Zaterdag 1-11-2025 om 06:17
Prinses Christinastraat, 6576BD Ooij

112 melding
Zaterdag 1-11-2025 om 06:15
Prinses Christinastraat, 6576BD Ooij

112 melding
Zaterdag 1-11-2025 om 06:12
Prinses Christinastraat, 6576BD Ooij

112 melding
Zaterdag 1-11-2025 om 06:12
Prinses Christinastraat, 6576BD Ooij

112 melding
Zaterdag 1-11-2025 om 06:11
Prinses Christinastraat, 6576BD Ooij

Direct een e-mail ontvangen bij nieuwe meldingen in deze regio?

Meld je dan GRATIS aan voor de Oozo Alert service voor Ooij

Instellen

Meer nieuws in Ooij

Weten hoe eenvoudig het is om af te vallen? Zonder pillen en smeersels en zonder je in het zweet te werken!
Kijk op eenvoudig-afvallen.nl

© 2012 - 2025 OOZO.nl - info@oozo.nl - Gegevens verwijderen? | Disclaimer | Privacy statement