Woning Dokter Duchateaustraat 33 Bergeijk

Dokter Duchateaustraat 33, 5571DA Bergeijk

Ontvang updates voor Bergeyk-Hof

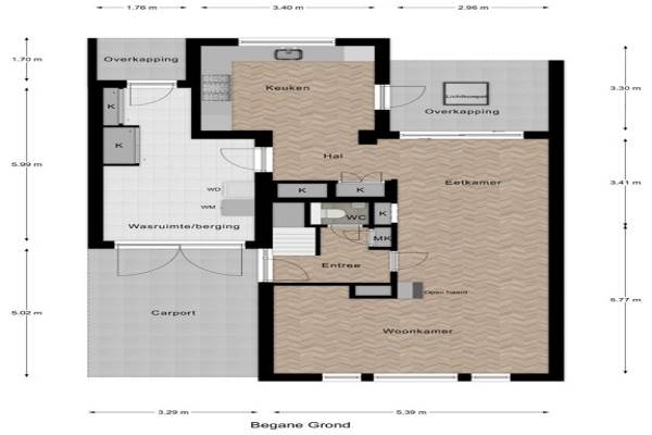
Het adres van deze woning uit 1987 is Dokter Duchateaustraat 33 te Bergeijk. Het pand heeft een oppervlakte van 140m² en een perceeloppervlakte van 273m² en heeft 5 kamers kamers waarvan 4 slaapkamers. De geschatte waarde van deze woning is € 425.000.

Bekijk alle woningen in Bergeyk-Hof

Gegevens van Eengezinswoning

Bouwjaar
1987
Geschatte waarde
€ 425.000
Oppervlakte
140 m2
Inhoud
494 m3
Aantal kamers
5 kamers
Slaapkamers
4
Badkamers
1 badkamer en 1 apart toilet
Soort bouw
Bestaande bouw
Eigendomssituatie
Volle eigendom
Ligging
In woonwijk
Tuin
Tuin
Achtertuin
144 m² (16 meter diep en 9 meter breed)

Voorzieningen in de buurt

Binnenkijken bij Dokter Duchateaustraat 33 te Bergeijk

Meer meldingen in deze omgeving

Binnenkijken bij
Dinsdag 25-11-2025
Burgemeester Magneestraat 65E, 5571HC Bergeijk

Nieuw bedrijf
November 2025
Buchtdwarsstraat 23, 5571CS Bergeijk

Nieuw bedrijf
November 2025
Klaverstraat 8, 5571HT Bergeijk

Nieuw bedrijf
November 2025
De Vogelezang 1a, 5571GX Bergeijk

Nieuw bedrijf
November 2025
Korenbloemstraat 14, 5571HR Bergeijk

Binnenkijken bij
Vrijdag 21-11-2025
Klaproosstraat 22, 5571JG Bergeijk

Nieuw bedrijf
November 2025
Bucht 68, 5571CX Bergeijk

Nieuw bedrijf
November 2025
Sint Jacobshof 4, 5571EM Bergeijk

Direct een e-mail ontvangen bij nieuwe meldingen in deze regio?

Meld je dan GRATIS aan voor de Oozo Alert service voor Bergeyk-Hof

Instellen

Meer nieuws in Bergeyk-Hof

Weten hoe eenvoudig het is om af te vallen? Zonder pillen en smeersels en zonder je in het zweet te werken!
Kijk op eenvoudig-afvallen.nl

© 2012 - 2025 OOZO.nl - info@oozo.nl - Gegevens verwijderen? | Disclaimer | Privacy statement