Woning Molenkampweg 1 Afferden L

Molenkampweg 1, 5851DJ Afferden L

Ontvang updates voor Afferden Kern

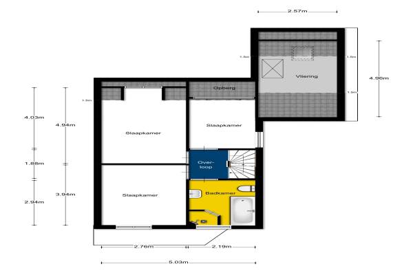
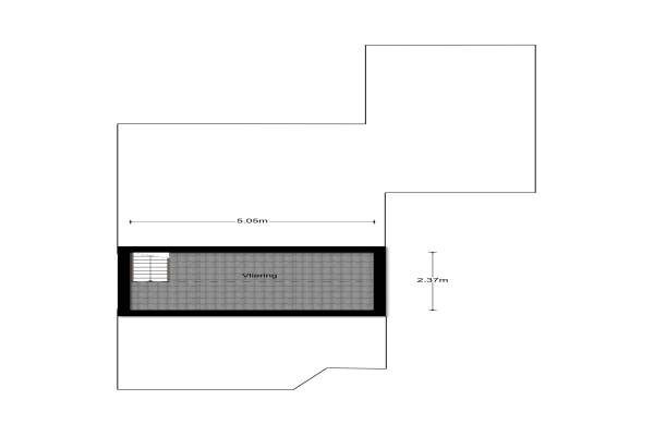
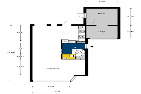
Het adres van deze woning uit 1985 is Molenkampweg 1 te Afferden L. Het pand heeft een oppervlakte van 115m² en een perceeloppervlakte van 186m² en heeft 5 kamers kamers waarvan 4 slaapkamers. De geschatte waarde van deze woning is € 229.000.

Bekijk alle woningen in Afferden Kern

Gegevens van Eengezinswoning, 2-onder-1-kapwoning

Bouwjaar
1985
Geschatte waarde
€ 229.000
Oppervlakte
115 m2
Inhoud
465 m3
Aantal kamers
5 kamers
Slaapkamers
4
Badkamers
1 badkamer en 1 apart toilet
Soort bouw
Bestaande bouw
Eigendomssituatie
Volle eigendom
Ligging
In woonwijk
Tuin
Achtertuin en voortuin
Achtertuin
72 m² (9m diep en 8m breed)

Voorzieningen in de buurt

Boodschappen0,6 km
Grote supermarkt0,6 km
Cafetaria0,6 km
Restaurant0,4 km
Huisarts0,8 km
Ziekenhuis9,4 km
Kinderdagverblijf0,5 km
BSO0,5 km
Alle voorzieningen in Afferden Kern

Binnenkijken bij Molenkampweg 1 te Afferden L

Meer meldingen in deze omgeving

Binnenkijken bij
Donderdag 26-3-2026
Dorpsstraat 58, 5851AK Afferden (LI)

Binnenkijken bij
Woensdag 25-3-2026
Quinveldweg 15, 5851DC Afferden (LI)

Nieuw bedrijf
Maart 2026
Dorpsstraat 66, 5851AK Afferden L

Binnenkijken bij
Donderdag 19-3-2026
Pastoor Berdenstraat 20, 5851AN Afferden (LI)

112 melding
Woensdag 11-3-2026 om 15:13
Dorpsstraat, Afferden

Binnenkijken bij
Zaterdag 7-3-2026
Alexanderstraat 3, 5851BS Afferden (LI)

Nieuw bedrijf
Februari 2026
Langstraat 17a, 5851BB Afferden L

Nieuw bedrijf
Februari 2026
Vliegenkamp 2, 5851DP Afferden L

Direct een e-mail ontvangen bij nieuwe meldingen in deze regio?

Meld je dan GRATIS aan voor de Oozo Alert service voor Afferden Kern

Instellen

Meer nieuws in Afferden Kern

Weten hoe eenvoudig het is om af te vallen? Zonder pillen en smeersels en zonder je in het zweet te werken!
Kijk op eenvoudig-afvallen.nl

© 2012 - 2026 OOZO.nl - info@oozo.nl - Gegevens verwijderen? | Disclaimer | Privacy statement