Woning Siebengewaldseweg 39 Bergen L

Siebengewaldseweg 39, 5854PA Bergen L

Ontvang updates voor Nieuw-Bergen Kern

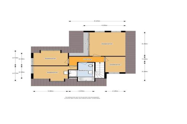
Het adres van deze woning uit 1992 is Siebengewaldseweg 39 te Bergen L. Het pand heeft 7 kamers kamers waarvan 4 slaapkamers. De geschatte waarde van deze woning is € 515.000.

Bekijk alle woningen in Nieuw-Bergen Kern

Gegevens van Eengezinswoning, vrijstaande woning

Bouwjaar
1992
Geschatte waarde
€ 515.000
Oppervlakte
0 m2
Inhoud
745 m3
Aantal kamers
7 kamers
Slaapkamers
4
Badkamers
1 apart toilet
Soort bouw
Bestaande bouw
Eigendomssituatie
Volle eigendom
Ligging
In centrum
Tuin
Achtertuin
Achtertuin
882 m² (42m diep en 21m breed)

Voorzieningen in de buurt

Boodschappen0,5 km
Grote supermarkt0,5 km
Cafetaria0,5 km
Restaurant0,6 km
Huisarts0,6 km
Ziekenhuis13,8 km
Kinderdagverblijf0,7 km
BSO0,7 km
Alle voorzieningen in Nieuw-Bergen Kern

Binnenkijken bij Siebengewaldseweg 39 te Bergen L

Meer meldingen in deze omgeving

Binnenkijken bij
Zaterdag 14-2-2026
George Breitnerstraat 5, 5854EE Bergen (LI)

112 melding
Woensdag 11-2-2026 om 21:58
Kleefstraat, Bergen (L.)

112 melding
Woensdag 11-2-2026 om 11:06
Frans Halsstraat, 5854EL Bergen L

Binnenkijken bij
Zaterdag 7-2-2026
Velduil 5, 5854HN Bergen (LI)

Binnenkijken bij
Zaterdag 7-2-2026
Frans Halsstraat 7, 5854EK Bergen (LI)

112 melding
Donderdag 5-2-2026 om 14:00
Frans Halsstraat, Bergen (L.)

112 melding
Donderdag 5-2-2026 om 14:00
Frans Halsstraat, Bergen

112 melding
Donderdag 5-2-2026 om 13:54
Frans Halsstraat, Bergen (L.)

Direct een e-mail ontvangen bij nieuwe meldingen in deze regio?

Meld je dan GRATIS aan voor de Oozo Alert service voor Nieuw-Bergen Kern

Instellen

Meer nieuws in Nieuw-Bergen Kern

Weten hoe eenvoudig het is om af te vallen? Zonder pillen en smeersels en zonder je in het zweet te werken!
Kijk op eenvoudig-afvallen.nl

© 2012 - 2026 OOZO.nl - info@oozo.nl - Gegevens verwijderen? | Disclaimer | Privacy statement