Woning Papenbeek 73 Well L

Papenbeek 73, 5855BC Well L

Ontvang updates voor Well-Oost

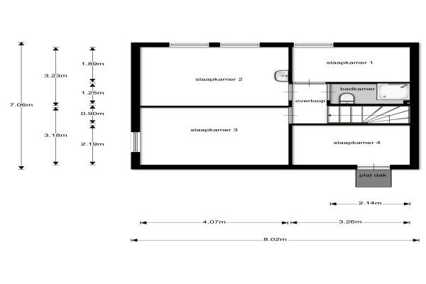
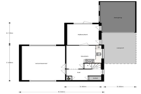
Het adres van deze woning uit 1975 is Papenbeek 73 te Well L. Het pand heeft een oppervlakte van 108m² en een perceeloppervlakte van 329m² en heeft 6 kamers kamers waarvan 4 slaapkamers. De geschatte waarde van deze woning is € 249.500.

Bekijk alle woningen in Well-Oost

Gegevens van Eengezinswoning, vrijstaande woning

Bouwjaar
1975
Geschatte waarde
€ 249.500
Oppervlakte
108 m2
Inhoud
475 m3
Aantal kamers
6 kamers
Slaapkamers
4
Badkamers
1 badkamer en 1 apart toilet
Soort bouw
Bestaande bouw
Eigendomssituatie
Volle eigendom
Ligging
Aan rustige weg en in woonwijk
Tuin
Achtertuin, voortuin en zijtuin

Voorzieningen in de buurt

Boodschappen0,6 km
Grote supermarkt2,4 km
Cafetaria0,4 km
Restaurant0,6 km
Huisarts0,8 km
Ziekenhuis13,3 km
Kinderdagverblijf0,7 km
BSO0,7 km
Alle voorzieningen in Well-Oost

Binnenkijken bij Papenbeek 73 te Well L

Meer meldingen in deze omgeving

Nieuw bedrijf
November 2025
De Paad 14, 5855AV Well L

Nieuw bedrijf
November 2025
De Paad 2, 5855AV Well L

Binnenkijken bij
Dinsdag 11-11-2025
Rietdekkerstraat 21, 5855DC Well (LI)

Nieuw bedrijf
Oktober 2025
Klokkemakerstraat 3, 5855BZ Well L

Nieuw bedrijf
Oktober 2025
Brouwerstraat 26, 5855CE Well L

112 melding
Maandag 27-10-2025 om 08:43
Elsterendijk, 5855AT Well

Binnenkijken bij
Zaterdag 27-9-2025
Koperslagerstraat 3, 5855DG Well (LI)

Binnenkijken bij
Woensdag 23-7-2025
Kasteellaan 8, 5855AE Well (LI)

Direct een e-mail ontvangen bij nieuwe meldingen in deze regio?

Meld je dan GRATIS aan voor de Oozo Alert service voor Well-Oost

Instellen

Meer nieuws in Well-Oost

Weten hoe eenvoudig het is om af te vallen? Zonder pillen en smeersels en zonder je in het zweet te werken!
Kijk op eenvoudig-afvallen.nl

© 2012 - 2025 OOZO.nl - info@oozo.nl - Gegevens verwijderen? | Disclaimer | Privacy statement