Woning Bovengroenewoudseweg 63 Bergen op Zoom

Bovengroenewoudseweg 63, 4613RA Bergen op Zoom

Ontvang updates voor Noordgeest

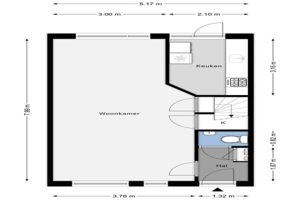
Het adres van deze woning uit 1985 is Bovengroenewoudseweg 63 te Bergen op Zoom. Het pand heeft een oppervlakte van 94m² en een perceeloppervlakte van 107m² en heeft 5 kamers kamers waarvan 4 slaapkamers. De geschatte waarde van deze woning is € 300.000.

Bekijk alle woningen in Noordgeest

Gegevens van Eengezinswoning, tussenwoning

Bouwjaar
1985
Geschatte waarde
€ 300.000
Oppervlakte
94 m2
Inhoud
325 m3
Aantal kamers
5 kamers
Slaapkamers
4
Badkamers
1 badkamer en 1 apart toilet
Soort bouw
Bestaande bouw
Eigendomssituatie
Volle eigendom
Ligging
In woonwijk, open ligging en vrij uitzicht
Tuin
Achtertuin en voortuin
Achtertuin
42 m² (8,00 meter diep en 5,20 meter breed)

Voorzieningen in de buurt

Boodschappen0,4 km
Grote supermarkt0,9 km
Cafetaria0,8 km
Restaurant1,0 km
Huisarts1,3 km
Ziekenhuis4,2 km
Kinderdagverblijf0,6 km
BSO0,6 km
Alle voorzieningen in Noordgeest

Binnenkijken bij Bovengroenewoudseweg 63 te Bergen op Zoom

Meer meldingen in deze omgeving

Nieuw bedrijf
December 2025
Melanendreef 151, 4614GK Bergen op Zoom

Nieuw bedrijf
December 2025
Halsterseweg 159, 4613AL Bergen op Zoom

Binnenkijken bij
Dinsdag 2-12-2025
Halsterseweg 174, 4613BB Bergen op Zoom

Nieuw bedrijf
December 2025
Rijsselbergen 86, 4613GE Bergen op Zoom

Binnenkijken bij
Zaterdag 29-11-2025
Melanendreef 180, 4614GK Bergen op Zoom

Nieuw bedrijf
November 2025
Duitslandstraat 55, 4614KD Bergen op Zoom

Nieuw bedrijf
November 2025
Duitslandstraat 55, 4614KD Bergen op Zoom

Nieuw bedrijf
November 2025
Denemarkenstraat 79, 4614JW Bergen op Zoom

Direct een e-mail ontvangen bij nieuwe meldingen in deze regio?

Meld je dan GRATIS aan voor de Oozo Alert service voor Noordgeest

Instellen

Meer nieuws in Noordgeest

Weten hoe eenvoudig het is om af te vallen? Zonder pillen en smeersels en zonder je in het zweet te werken!
Kijk op eenvoudig-afvallen.nl

© 2012 - 2025 OOZO.nl - info@oozo.nl - Gegevens verwijderen? | Disclaimer | Privacy statement