Woning Balsebaan 57 Bergen op Zoom

Balsebaan 57, 4621AL Bergen op Zoom

Ontvang updates voor Gageldonk-West

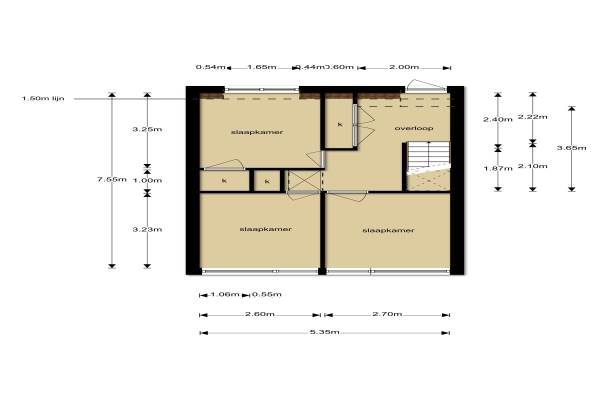
Het adres van deze woning uit 1928 is Balsebaan 57 te Bergen op Zoom. Het pand heeft een oppervlakte van 97m² en een perceeloppervlakte van 181m² en heeft 4 kamers kamers waarvan 3 slaapkamers. De geschatte waarde van deze woning is € 199.500.

Bekijk alle woningen in Gageldonk-West

Gegevens van Eengezinswoning, 2-onder-1-kapwoning

Bouwjaar
1928
Geschatte waarde
€ 199.500
Oppervlakte
97 m2
Inhoud
427 m3
Aantal kamers
4 kamers
Slaapkamers
3
Badkamers
1 apart toilet
Soort bouw
Bestaande bouw
Eigendomssituatie
Volle eigendom
Ligging
In woonwijk
Tuin
Achtertuin en voortuin
Achtertuin
88 m² (12,5m diep en 7m breed)

Voorzieningen in de buurt

Boodschappen0,3 km
Grote supermarkt0,4 km
Cafetaria0,3 km
Restaurant0,6 km
Huisarts0,5 km
Ziekenhuis1,5 km
Kinderdagverblijf0,3 km
BSO0,8 km
Alle voorzieningen in Gageldonk-West

Binnenkijken bij Balsebaan 57 te Bergen op Zoom

Meer meldingen in deze omgeving

Binnenkijken bij
Zondag 25-1-2026
Kastanjelaan 296, 4621HN Bergen op Zoom

112 melding
Vrijdag 23-1-2026 om 22:16
Gentiaanstraat, 4621EH Bergen op Zoom

Binnenkijken bij
Donderdag 22-1-2026
Gentiaanstraat 6, 4621EL Bergen op Zoom

112 melding
Woensdag 21-1-2026 om 08:48
Wikkelaan, 4621CB Bergen op Zoom

112 melding
Woensdag 21-1-2026 om 08:39
Wikkelaan, 4621CB Bergen op Zoom

112 melding
Woensdag 21-1-2026 om 08:39
Wikkelaan, 4621CB Bergen op Zoom

112 melding
Woensdag 21-1-2026 om 08:39
Wikkelaan, 4621CB Bergen op Zoom

112 melding
Woensdag 21-1-2026 om 08:39
Wikkelaan, 4621CB Bergen op Zoom

Direct een e-mail ontvangen bij nieuwe meldingen in deze regio?

Meld je dan GRATIS aan voor de Oozo Alert service voor Gageldonk-West

Instellen

Meer nieuws in Gageldonk-West

Weten hoe eenvoudig het is om af te vallen? Zonder pillen en smeersels en zonder je in het zweet te werken!
Kijk op eenvoudig-afvallen.nl

© 2012 - 2026 OOZO.nl - info@oozo.nl - Gegevens verwijderen? | Disclaimer | Privacy statement