Woning Sint-Antoniusstraat 13 Bergen op Zoom

Sint-Antoniusstraat 13, 4611TA Bergen op Zoom

Ontvang updates voor Centrum

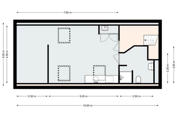
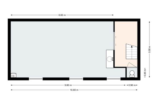
Het adres van deze woning uit 1700 is Sint-Antoniusstraat 13 te Bergen op Zoom. Het pand heeft een oppervlakte van 48m² en een perceeloppervlakte van 50m² en heeft 2 kamers kamers waarvan 1 slaapkamers. De geschatte waarde van deze woning is € 210.000.

Bekijk alle woningen in Centrum

Gegevens van Eengezinswoning, tussenwoning

Bouwjaar
1700
Geschatte waarde
€ 210.000
Oppervlakte
48 m2
Inhoud
460 m3
Aantal kamers
2 kamers
Slaapkamers
1
Badkamers
1 badkamer en 2 aparte toiletten
Soort bouw
Bestaande bouw
Eigendomssituatie
Volle eigendom
Ligging
Aan rustige weg en in centrum

Voorzieningen in de buurt

Boodschappen0,2 km
Grote supermarkt0,5 km
Cafetaria0,2 km
Restaurant0,1 km
Huisarts0,3 km
Ziekenhuis2,6 km
Kinderdagverblijf0,3 km
BSO0,3 km
Alle voorzieningen in Centrum

Binnenkijken bij Sint-Antoniusstraat 13 te Bergen op Zoom

Meer meldingen in deze omgeving

112 melding
Vrijdag 24-4-2026 om 16:32
Koepeldwarsstraat, 4611JV Bergen op Zoom

112 melding
Vrijdag 24-4-2026 om 16:32
Koepeldwarsstraat, 4611JV Bergen op Zoom

112 melding
Vrijdag 24-4-2026 om 16:32
Koepeldwarsstraat, 4611JV Bergen op Zoom

112 melding
Vrijdag 24-4-2026 om 16:32
Koepeldwarsstraat, 4611JV Bergen op Zoom

Nieuw bedrijf
April 2026
Koepelstraat 62, 4611LV Bergen op Zoom

Nieuw bedrijf
April 2026
Boutershemstraat 32, 4611KD Bergen Op Zoom

Nieuw bedrijf
April 2026
Koepelstraat 68, 4611LV Bergen op Zoom

Nieuw bedrijf
April 2026
Potterstraat 13, 4611NG Bergen op Zoom

Direct een e-mail ontvangen bij nieuwe meldingen in deze regio?

Meld je dan GRATIS aan voor de Oozo Alert service voor Centrum

Instellen

Meer nieuws in Centrum

Weten hoe eenvoudig het is om af te vallen? Zonder pillen en smeersels en zonder je in het zweet te werken!
Kijk op eenvoudig-afvallen.nl

© 2012 - 2026 OOZO.nl - info@oozo.nl - Gegevens verwijderen? | Disclaimer | Privacy statement