Woning De Boulevard 158 Bergen op Zoom

De Boulevard 158, 4617LZ Bergen op Zoom

Ontvang updates voor Bergse Plaat

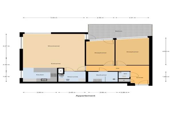
Het adres van deze woning uit 1995 is De Boulevard 158 te Bergen op Zoom. Het pand heeft een oppervlakte van 92m² en heeft 3 kamers kamers waarvan 2 slaapkamers. De geschatte waarde van deze woning is € 379.900.

Bekijk alle woningen in Bergse Plaat

Gegevens van Appartement

Bouwjaar
1995
Geschatte waarde
€ 379.900
Oppervlakte
92 m2
Inhoud
281 m3
Aantal kamers
3 kamers
Slaapkamers
2
Badkamers
1 apart toilet
Soort bouw
Bestaande bouw
Eigendomssituatie
Volle eigendom
Ligging
Aan water, beschutte ligging, in bosrijke omgeving, in centrum, in woonwijk, open ligging en vrij uitzicht
Tuin
Balkon aanwezig

Voorzieningen in de buurt

Boodschappen1,3 km
Grote supermarkt1,1 km
Cafetaria1,1 km
Restaurant1,5 km
Huisarts0,9 km
Ziekenhuis4,2 km
Kinderdagverblijf0,7 km
BSO0,7 km
Alle voorzieningen in Bergse Plaat

Binnenkijken bij De Boulevard 158 te Bergen op Zoom

Meer meldingen in deze omgeving

Nieuw bedrijf
April 2026
Paviljoentjalk 13, 4617GM Bergen op Zoom

112 melding
Dinsdag 14-4-2026 om 20:28
Geepstraat, 4617AK Bergen op Zoom

112 melding
Dinsdag 14-4-2026 om 20:28
Geepstraat, 4617AK Bergen op Zoom

112 melding
Dinsdag 14-4-2026 om 20:28
Geepstraat, 4617AK Bergen op Zoom

112 melding
Dinsdag 14-4-2026 om 20:28
Geepstraat, 4617AK Bergen op Zoom

112 melding
Dinsdag 14-4-2026 om 20:28
Geepstraat, 4617AK Bergen op Zoom

Binnenkijken bij
Maandag 13-4-2026
Lamsoor 65, 4617JA Bergen op Zoom

112 melding
Zaterdag 11-4-2026 om 13:24
Ansjovislaan, Bergen op Zoom

Direct een e-mail ontvangen bij nieuwe meldingen in deze regio?

Meld je dan GRATIS aan voor de Oozo Alert service voor Bergse Plaat

Instellen

Meer nieuws in Bergse Plaat

Weten hoe eenvoudig het is om af te vallen? Zonder pillen en smeersels en zonder je in het zweet te werken!
Kijk op eenvoudig-afvallen.nl

© 2012 - 2026 OOZO.nl - info@oozo.nl - Gegevens verwijderen? | Disclaimer | Privacy statement