Woning Paviljoentjalk 1 Bergen op Zoom

Paviljoentjalk 1, 4617GM Bergen op Zoom

Ontvang updates voor Bergse Plaat

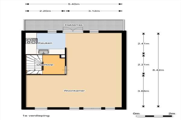
Het adres van deze woning uit 1998 is Paviljoentjalk 1 te Bergen op Zoom. Het pand heeft een oppervlakte van 110m² en een perceeloppervlakte van 166m² en heeft 5 kamers kamers waarvan 4 slaapkamers. De geschatte waarde van deze woning is € 259.000.

Bekijk alle woningen in Bergse Plaat

Gegevens van Eengezinswoning, hoekwoning

Bouwjaar
1998
Geschatte waarde
€ 259.000
Oppervlakte
110 m2
Inhoud
435 m3
Aantal kamers
5 kamers
Slaapkamers
4
Soort bouw
Bestaande bouw
Eigendomssituatie
Volle eigendom
Ligging
Aan water
Tuin
Achtertuin en voortuin
Achtertuin
66 m² (12m diep en 5,5m breed)

Voorzieningen in de buurt

Boodschappen1,3 km
Grote supermarkt1,1 km
Cafetaria1,1 km
Restaurant1,5 km
Huisarts0,9 km
Ziekenhuis4,2 km
Kinderdagverblijf0,7 km
BSO0,7 km
Alle voorzieningen in Bergse Plaat

Binnenkijken bij Paviljoentjalk 1 te Bergen op Zoom

Meer meldingen in deze omgeving

Binnenkijken bij
Vrijdag 12-12-2025
Hoogaars 26, 4617GE Bergen op Zoom

Binnenkijken bij
Vrijdag 12-12-2025
Schoudee 20, 4617NH Bergen op Zoom

Binnenkijken bij
Donderdag 11-12-2025
Buizerd 22, 4617JL Bergen op Zoom

Nieuw bedrijf
December 2025
Statietjalk 24, 4617GN Bergen op Zoom

Binnenkijken bij
Zaterdag 6-12-2025
De Boulevard 143, 4617HC Bergen op Zoom

Binnenkijken bij
Donderdag 4-12-2025
Oostplaat 47, 4617LN Bergen op Zoom

Nieuw bedrijf
December 2025
Zwartewaal 53, 4617NS Bergen op Zoom

Nieuw bedrijf
December 2025
Fonteinkruid 13, 4617JE Bergen op Zoom

Direct een e-mail ontvangen bij nieuwe meldingen in deze regio?

Meld je dan GRATIS aan voor de Oozo Alert service voor Bergse Plaat

Instellen

Meer nieuws in Bergse Plaat

Weten hoe eenvoudig het is om af te vallen? Zonder pillen en smeersels en zonder je in het zweet te werken!
Kijk op eenvoudig-afvallen.nl

© 2012 - 2025 OOZO.nl - info@oozo.nl - Gegevens verwijderen? | Disclaimer | Privacy statement