Woning Molenakkers 11 Vorstenbosch

Molenakkers 11, 5476LH Vorstenbosch

Ontvang updates voor Vorstenbosch

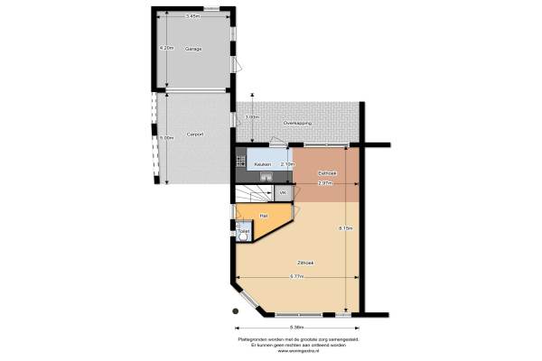
Het adres van deze woning uit 1989 is Molenakkers 11 te Vorstenbosch. Het pand heeft een oppervlakte van 85m² en een perceeloppervlakte van 237m² en heeft 4 kamers kamers waarvan 3 slaapkamers. De geschatte waarde van deze woning is € 450.000.

Bekijk alle woningen in Vorstenbosch

Gegevens van Eengezinswoning, 2-onder-1-kapwoning

Bouwjaar
1989
Geschatte waarde
€ 450.000
Oppervlakte
85 m2
Inhoud
337 m3
Aantal kamers
4 kamers
Slaapkamers
3
Badkamers
1 badkamer en 1 apart toilet
Soort bouw
Bestaande bouw
Eigendomssituatie
Volle eigendom
Ligging
Aan rustige weg en in woonwijk
Tuin
Achtertuin en voortuin
Achtertuin
66 m² (11,00 meter diep en 6,00 meter breed)

Voorzieningen in de buurt

Boodschappen0,4 km
Grote supermarkt0,5 km
Cafetaria0,4 km
Restaurant3,0 km
Huisarts4,1 km
Ziekenhuis4,9 km
Kinderdagverblijf0,4 km
BSO0,5 km
Alle voorzieningen in Vorstenbosch

Binnenkijken bij Molenakkers 11 te Vorstenbosch

Meer meldingen in deze omgeving

Nieuw bedrijf
Mei 2026
Schoolstraat 9, 5476KH Vorstenbosch

Nieuw bedrijf
April 2026
Peelstraat 4, 5476LD Vorstenbosch

Nieuw bedrijf
April 2026
Peelstraat 8, 5476LD Vorstenbosch

Binnenkijken bij
Donderdag 16-4-2026
Lieve Vrouweveld 3, 5476LP Vorstenbosch

112 melding
Zondag 12-4-2026 om 21:09
Heuvel, 5476KG Vorstenbosch

Nieuw bedrijf
April 2026
Rietdijk 1, 5476VS Vorstenbosch

Nieuw bedrijf
April 2026
Rietdijk 1, 5476VS Vorstenbosch

112 melding
Donderdag 9-4-2026 om 18:17
Heuvel, 5476KG Vorstenbosch

Direct een e-mail ontvangen bij nieuwe meldingen in deze regio?

Meld je dan GRATIS aan voor de Oozo Alert service voor Vorstenbosch

Instellen

Meer nieuws in Vorstenbosch

Weten hoe eenvoudig het is om af te vallen? Zonder pillen en smeersels en zonder je in het zweet te werken!
Kijk op eenvoudig-afvallen.nl

© 2012 - 2026 OOZO.nl - info@oozo.nl - Gegevens verwijderen? | Disclaimer | Privacy statement