Woning Heilarensestraat 44 Heeswijk-Dinther

Heilarensestraat 44, 5473RB Heeswijk-Dinther

Ontvang updates voor Heilaren

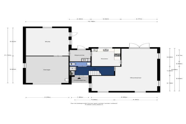
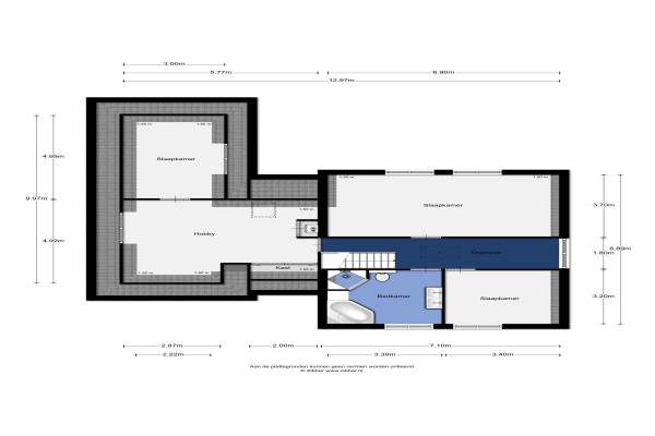
Het adres van deze woning uit 1994 is Heilarensestraat 44 te Heeswijk-Dinther. Het pand heeft een oppervlakte van 193m² en een perceeloppervlakte van 615m² en heeft 7 kamers kamers waarvan 3 slaapkamers. De geschatte waarde van deze woning is € 485.000.

Bekijk alle woningen in Heilaren

Gegevens van Eengezinswoning, vrijstaande woning

Bouwjaar
1994
Geschatte waarde
€ 485.000
Oppervlakte
193 m2
Inhoud
832 m3
Aantal kamers
7 kamers
Slaapkamers
3
Badkamers
1 badkamer en 1 apart toilet
Soort bouw
Bestaande bouw
Eigendomssituatie
Volle eigendom
Ligging
In centrum
Tuin
Tuin rondom

Voorzieningen in de buurt

Boodschappen0,9 km
Grote supermarkt0,9 km
Cafetaria0,9 km
Restaurant1,0 km
Huisarts0,4 km
Ziekenhuis10,5 km
Kinderdagverblijf1,1 km
BSO0,3 km
Alle voorzieningen in Heilaren

Binnenkijken bij Heilarensestraat 44 te Heeswijk-Dinther

Meer meldingen in deze omgeving

Binnenkijken bij
Dinsdag 25-11-2025
De Schans 17, 5473PH Heeswijk-Dinther

Binnenkijken bij
Dinsdag 11-11-2025
Schuurakker 35, 5473PC Heeswijk-Dinther

Nieuw bedrijf
Oktober 2025
De Schans 27, 5473PH Heeswijk-Dinther

Nieuw bedrijf
Oktober 2025
Het Geleer 20, 5473PG Heeswijk-Dinther

Nieuw bedrijf
Oktober 2025
De Bariks 10, 5473RX Heeswijk-Dinther

Binnenkijken bij
Zondag 12-10-2025
Windberg 27, 5473PA Heeswijk-Dinther

Nieuw bedrijf
September 2025
Nieuwlandsestraat 7, 5473RT Heeswijk-Dinther

Binnenkijken bij
Vrijdag 6-6-2025
De Essenburgh 19, 5473PB Heeswijk-Dinther

Direct een e-mail ontvangen bij nieuwe meldingen in deze regio?

Meld je dan GRATIS aan voor de Oozo Alert service voor Heilaren

Instellen

Meer nieuws in Heilaren

Weten hoe eenvoudig het is om af te vallen? Zonder pillen en smeersels en zonder je in het zweet te werken!
Kijk op eenvoudig-afvallen.nl

© 2012 - 2025 OOZO.nl - info@oozo.nl - Gegevens verwijderen? | Disclaimer | Privacy statement