Woning Heilarensestraat 9 Heeswijk-Dinther

Heilarensestraat 9, 5473RA Heeswijk-Dinther

Ontvang updates voor Heilaren

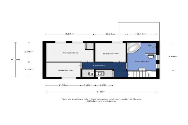
Het adres van deze woning uit 1952 is Heilarensestraat 9 te Heeswijk-Dinther. Het pand heeft een oppervlakte van 89m² en een perceeloppervlakte van 350m² en heeft 6 kamers kamers waarvan 3 slaapkamers. De geschatte waarde van deze woning is € 275.000.

Bekijk alle woningen in Heilaren

Gegevens van Eengezinswoning, 2-onder-1-kapwoning

Bouwjaar
1952
Geschatte waarde
€ 275.000
Oppervlakte
89 m2
Inhoud
298 m3
Aantal kamers
6 kamers
Slaapkamers
3
Badkamers
1 apart toilet
Soort bouw
Bestaande bouw
Eigendomssituatie
Volle eigendom
Ligging
Aan rustige weg
Tuin
Achtertuin, voortuin en zijtuin
Achtertuin
124 m² (16,5m diep en 7,5m breed)

Voorzieningen in de buurt

Boodschappen0,9 km
Grote supermarkt0,9 km
Cafetaria0,9 km
Restaurant1,0 km
Huisarts0,4 km
Ziekenhuis10,5 km
Kinderdagverblijf1,1 km
BSO0,3 km
Alle voorzieningen in Heilaren

Binnenkijken bij Heilarensestraat 9 te Heeswijk-Dinther

Meer meldingen in deze omgeving

Binnenkijken bij
Donderdag 22-1-2026
De Streepen 9, 5473PE Heeswijk-Dinther

Nieuw bedrijf
Januari 2026
Heilarensestraat 22, 5473RB HEESWIJK-DINTHER

Binnenkijken bij
Vrijdag 9-1-2026
Windberg 25, 5473PA Heeswijk-Dinther

Binnenkijken bij
Vrijdag 9-1-2026
Windberg 29, 5473PA Heeswijk-Dinther

Nieuw bedrijf
Januari 2026
Het Geleer 15, 5473PG HEESWIJK-DINTHER

Binnenkijken bij
Woensdag 24-12-2025
Schuurakker 3, 5473PC Heeswijk-Dinther

Nieuw bedrijf
December 2025
Windberg 35, 5473PA HEESWIJK-DINTHER

Binnenkijken bij
Dinsdag 25-11-2025
De Schans 17, 5473PH Heeswijk-Dinther

Direct een e-mail ontvangen bij nieuwe meldingen in deze regio?

Meld je dan GRATIS aan voor de Oozo Alert service voor Heilaren

Instellen

Meer nieuws in Heilaren

Weten hoe eenvoudig het is om af te vallen? Zonder pillen en smeersels en zonder je in het zweet te werken!
Kijk op eenvoudig-afvallen.nl

© 2012 - 2026 OOZO.nl - info@oozo.nl - Gegevens verwijderen? | Disclaimer | Privacy statement