Woning Canadabaan 12 Nistelrode

Canadabaan 12, 5388RT Nistelrode

Ontvang updates voor Kleinwijk

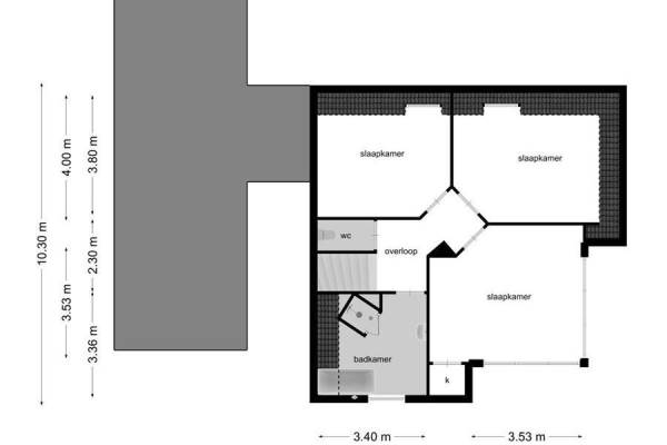
Het adres van deze woning uit 1998 is Canadabaan 12 te Nistelrode. Het pand heeft een oppervlakte van 170m² en een perceeloppervlakte van 505m² en heeft 5 kamers kamers waarvan 3 slaapkamers. De geschatte waarde van deze woning is € 465.000.

Bekijk alle woningen in Kleinwijk

Gegevens van Herenhuis, vrijstaande woning (bedrijfs- of dienstwoning)

Bouwjaar
1998
Geschatte waarde
€ 465.000
Oppervlakte
170 m2
Inhoud
750 m3
Aantal kamers
5 kamers
Slaapkamers
3
Badkamers
1 badkamer en 1 apart toilet
Soort bouw
Bestaande bouw
Eigendomssituatie
Volle eigendom
Ligging
Bedrijventerrein
Tuin
Tuin rondom

Voorzieningen in de buurt

Boodschappen1,4 km
Grote supermarkt1,3 km
Cafetaria0,8 km
Restaurant1,1 km
Huisarts0,7 km
Ziekenhuis5,5 km
Kinderdagverblijf0,7 km
BSO0,7 km
Alle voorzieningen in Kleinwijk

Binnenkijken bij Canadabaan 12 te Nistelrode

Meer meldingen in deze omgeving

Binnenkijken bij
Vrijdag 10-4-2026
Kerkveld 65, 5388RH Nistelrode

Nieuw bedrijf
April 2026
Vendelweg 15, 5388RV Nistelrode

Binnenkijken bij
Dinsdag 31-3-2026
Kruisstraat 5, 5388CH Nistelrode

Binnenkijken bij
Woensdag 4-3-2026
Blauwesteenweg 75, 5388SC Nistelrode

Faillissement
Woensdag 11-2-2026
De Oude Ros 30, 5388PM Nistelrode

Nieuw bedrijf
December 2025
Canadabaan 2, 5388RT Nistelrode

Nieuw bedrijf
December 2025
Canadabaan 2, 5388RT Nistelrode

Onroerend goed
Donderdag 9-10-2025
Canadabaan 7-l, 5388RT Nistelrode

Direct een e-mail ontvangen bij nieuwe meldingen in deze regio?

Meld je dan GRATIS aan voor de Oozo Alert service voor Kleinwijk

Instellen

Meer nieuws in Kleinwijk

Weten hoe eenvoudig het is om af te vallen? Zonder pillen en smeersels en zonder je in het zweet te werken!
Kijk op eenvoudig-afvallen.nl

© 2012 - 2026 OOZO.nl - info@oozo.nl - Gegevens verwijderen? | Disclaimer | Privacy statement